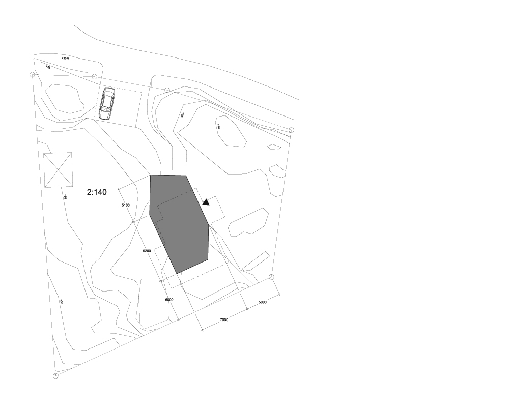
Proprietatea este situata intr-o zona rezidentiala la nord-vest de Gothenburg, pe creasta unui deal ,cu vedere spre Marea Nordului.Forma volumului cladirii urmareste topografia existenta a terenului,dorind sa creeze o circulatie naturala in jurul cladirii dar si o circulatie interioara fluenta intre camere,subliniind perspective specifice zonei.
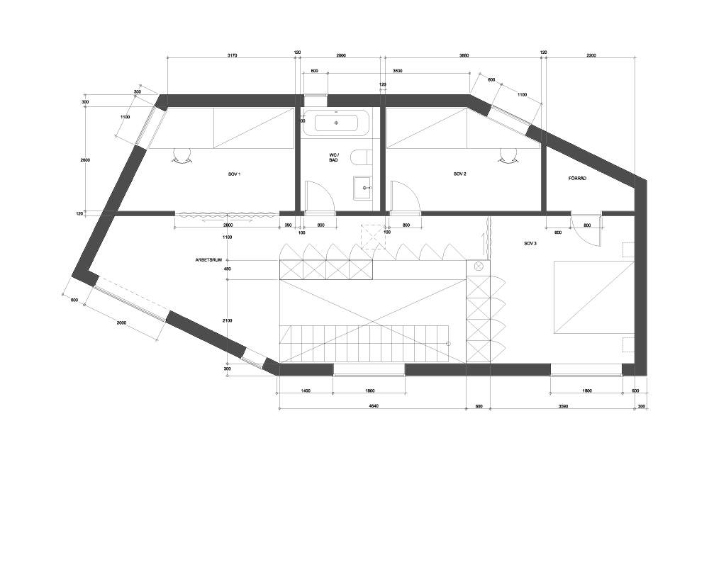
Casa este destinata unei familii mici,avand o suprafata de 168 mp si este impartita pe 2 nivele.In zona parterului avem bucataria cu loc de luat masa si camera de zi ,iar la nivelul superior un dormitor si 2 zone de lucru:birouri.
Cele 6 fatade sunt acoperite cu foi din tabla ondulata de culoare neagra ,cu rame pentru ferestre din aluminiu.
De la distanta,cladirea are tendinta sa fie abstracta,ca un simbol al unei case,dar apropiindute de ea devine mai mult fizica si prezenta si iti dai seama ca este ceva asemanator unei case,fiind un volum simplu NEGRU la exterior cu goluri mari ce dau spre un interior ALB.
Arhitect: Johannes Norlander Arkitektur
Locatie: langa Gothenburg, Sweden
Suprafata desfasurata: 168 mp
Anul proiectului: 2010
Fotograf: Rasmus Norlander
- Sursa: Johannes Norlander Arkitektur / www.archdaily.com / www.designboom.com
- arhipură – pur si simplu arhitectură …



















Multumesc pentru vizita recenta pe blogul meu http://www.arhiprofesor.wordpress.com si pentru comentariu. Am avut curiozitatea sa intorc vizita si surpriza sa gasesc un blog interesant si bine sustinut. O sa-mi faca placere daca sunteti de acord sa facem un schimb de link-uri care sa ajute la dezvoltarea retelei de bloguri de arhitectura. Succes !
Multumesc pentru aprecieri.M-ar interesa un schimb de linkuri,dar sa fie de tip banner,nu doar text.
Pentru mai multe detalii in legatura cu dimensiunea banner-ului putem discuta pe e-mail : arhipura@yahoo.com
O zi buna