Casa prezentata este construita la periferia unei zone suburbane, Jermanice din Cehia.
Forma terenului in panta si orientarea nefavorabila spre nord au fost decisive pentru volumul casei, plasarea ei, amenajarea sitului.Astfel s-a ajuns la un volum ce „musca” din panta dealului, accesul facandu-se la primul etaj ce reprezinta zona de zi si din care se coboara in zona de noapte.
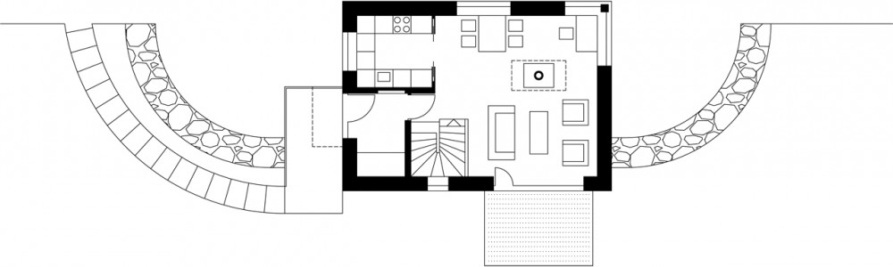
Doua dormitoare, instalaţii sanitare, o camera tehnica si un spatiu de depozitare sunt situate la etajul de jos.Cea mai mare parte din suprafata etajului superior o ocupa camera de zi ce intra in legatura cu bucataria.
Casa este încălzită cu un boiler electric, si in zona camerei de zi incalzirea se poate face si cu ajutorul unei sobe pe lemne. Ventilatia tuturor camerelor este asigurată de o unitate de ventilaţie cu recuperare.
Arhitect: Vladimír Balda
Locatie: Jermanice, Cehia
Structural engineering: Vít Hušek
Suprafata proiect: 87 mp
Anul proiectului: 2007
Fotograf: Aleš Jungmann , Lubomír Fuxa
- Sursa: Vladimír Balda / www.archdaily.com
- arhipură – pur si simplu arhitectură …



































