Oricine calatoreste in jurul Saigonului, un oras haotic ca dezvoltare si cu cea mai mare densitate a populatiei din lume, poate intalni cu usurinta ghivece cu flori dispuse aleator pe toate strazile. Acest obicei interesant a format caracterul amuzant al orasului pe o perioada lunga de timp iar cetatenii iubesc viata lor si se incojoara cu o mare varietate de plante tropicale si flori in balcoane, curti si pe strazi.
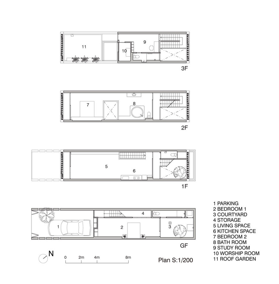
Casa a fost conceputa pentru un cuplu de treizeci de ani si mama lor, este o casa tipica „tub” construita pe un teren ingust cu deschidere de 4m la strada si lung de 20 de metri. Fatadele din fata si spate sunt compuse in intregime din fasii de beton ce devin ghivece pentru plantele tropicale. Distanta dintre ghivecele (fasiile din beton) plantate sunt ajustate in functia de inaltimea vegetatie plantate, care variaza de la 30 cm la 60 cm. Pentru a uda plantele si pentru o intretinere usoara, s-au folosit conducte de irigare automata in interiorul ghivecelor plantate. Arhitectii au numit aceasta casa tropicala, unica si verde „Stivuirea verde”, datorita fatadele umplute in straturi cu multa verdeata.
Structura acestei case moderne este realizata in cadre utilizate pe scara larga in Vietnam. Peretii despartitori sunt foarte putini si au scopul de a mentine fluenta interiorului si ofera posibilitatea de a vizualiza fatadele verzi din orice punct al casei. Pe parcursul zilei lumina soarelui intra prin cantitatea de frunze de pe ambele fatade si creeaza efecte frumoase de umbre pe peretii placati cu granit (placi de 2 cm latime).
Fatadele verzi si gradina de pe acoperis protejeaza locuitorii sai de lumina puternica si directa a soarelui, poluare si zgomotul strazii. Mai mult, ventilatia naturala prin fatadele verzi si prin cele 2 curti de lumina, permit acestei case sa economiseasca multa energie in climatul aspru al Saigonului. In ceea ce priveste aceste abordari ecologice, arhitectii au facut referire foarte multa la principiile bioclimatice ale caselor traditionale vietnameze.
Desi peisajul urban al orasului Saigon este uniform si plictisitor sub influenta extinderii urbane haotice din ultimii ani, arhitectii au propus aceasta casa pentru a inspira oamenii sa redefineasca si extinda verdeata ca un caracter principal al acestui oras. „Stivuirea Verde” este doar o casa mica, dar este generata de contextul acestui oras.
Arhitect: Vo Trong Nghia Architects
Locatie: Saigon, Vietnam
Anul constructiei : 2012
Suprafata totala construita : 240 mp
Fotograf: Hiroyuki Oki
- Sursa: Vo Trong Nghia Architects | www.europaconcorsi.com
- arhipură | pur si simplu arhitectură …

























4 gânduri despre &8222;Green modern house | Vietnam&8221;