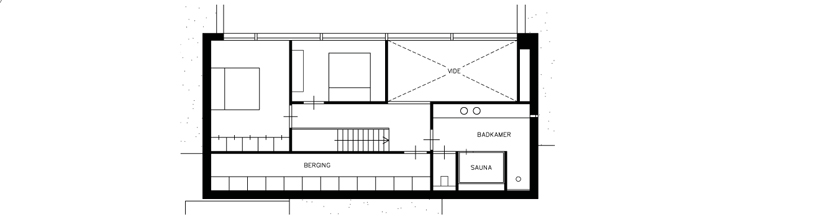
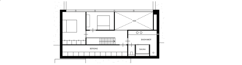
Vila Rotonda din Goirle, Olanda, a fost proiectata de biroul de arhitectura olandez Bedaux de Brouwer Architecten .
Amplasarea casei se face in apropierea unui drum secundar cu ciculatie destul de intensa. Masurile luate de arhitecti au trebuit sa asigure linistea si confortul locuintei. Aceasta constrangere a devenit ideea de plecare a casei avand doua caractere opuse: dinspre strada casa este inchisa, traditionala, protectoare, iar dinspre gradina prezinta o parte extrovertita, transparenta si moderna.
Fatada vizibila din directia drumului circulat este inchisa in totalitate cu exceptia unei singure ferestre. Chiar in spatele acestui zid, o curte interioara cu un bazin superficial de apa permite luminii naturale sa intre in casa, impingand in acelasi timp zonele de zi mai departe de strada aglomerata.
Un perete inchide perimetrul parcelei cu gradina spatioasa si asigura intimitatea locuitorilor. Fatada orientata spre gradina este complet transparenta, iar peretii de sticla se inalta de la nivelul terenului pana la jumatatea celui de-al doilea etaj. Cu ajutorul acestei zone mari vitrate spatiul exterior este adus mai aproape de interior. Nuantele de gri folosite la finisarea suprafetelor exterioare: caramida gri-deschis si tiglele acoperisului gri-inchis, sunt tipice repertoriului arhitectilor Bedaux.
Arhitect: Bedaux de Brouwer Architecten
Locatie: Goirle, Olanda
Anul finalizarii: 2010
Suprafata construita : 220 mp
Fotograf :Michel Kievits
- Sursa: Bedaux de Brouwer Architecten / www.homedsgn.com
- arhipură – pur si simplu arhitectură …
























Un gând despre &8222;Villa Rotonda / Olanda&8221;