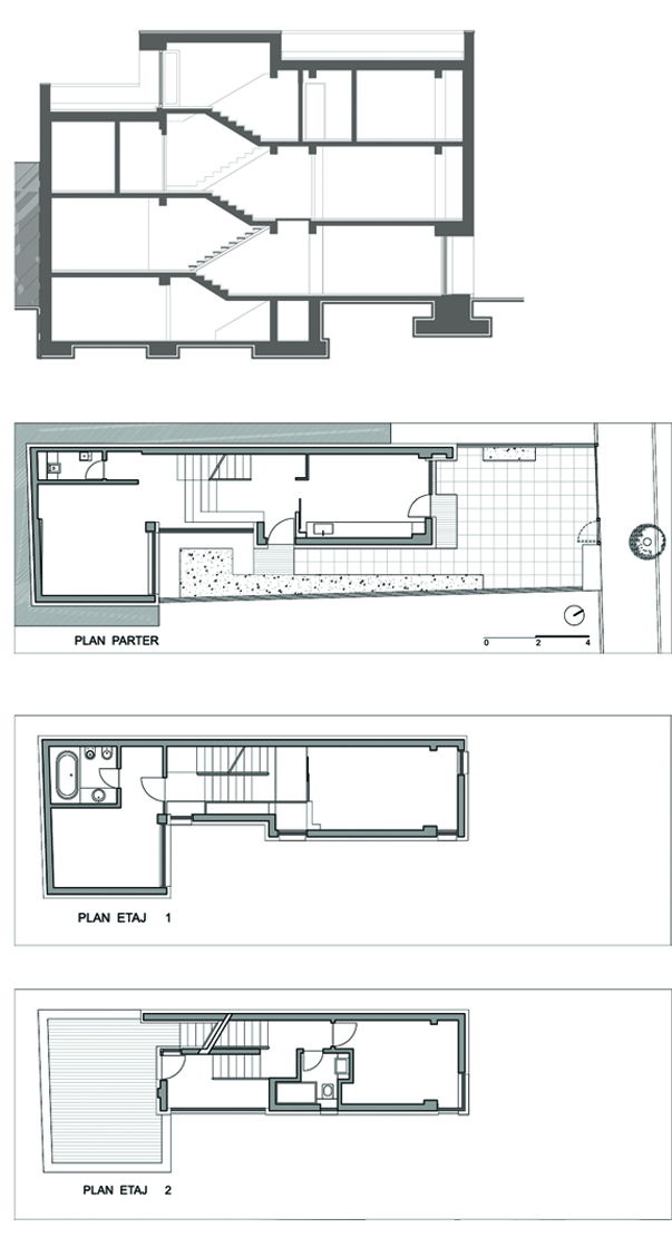
Răspunsul spaţial-volumetric la proiectarea unei astfel de locuinţe cu o suprafaţă construită mică de 57mp, pe un teren de o suprafaţă de 125 mp, s-a făcut prin intermediul unui volum ingust cu două niveluri.
Parterul în formă de L a permis compunerea a două volume, primul cu o dezvoltare ascendentă ce încorporează spaţiul zonei de zi şi scara desfăşurată liber, şi al doilea volum, dezvoltat pe orizontală cu vizibilitate spre curte având deschiderea maximă de 3,10 m util, rezervându-se astfel zona de parter spaţiului principal de zi, iar etajelor zona de noapte şi relaxare.
Proiectul a urmărit încă de la început ideea de “casă totală” extinsă către spaţiul exterior, şi aceea a spaţiului exterior care pătrunde in interior, perforând plinurile. Casa conlucrează permanent cu lumina, zona de curte, si atmosfera exterioră a străzii şi cartierului. Grădina şi partea de relaxare a casei sunt desprinse de pămant, zona de terasă devenind gradină şi, în acelaşi timp, spaţiul de relaxare şi refugiu de la nivelul străzii şi al pietonalului.
Intrarea în vestibulul principal descoperă un spaţiu orientat orizontal spre curte şi în acelaşi timp, un altul, orientat vertical, spre lumină. Desfăşurată în punctul de greutate al planului casei, scara face legătura între spaţiile locuinţei alături de golul şi lumina ce pătrund vertical în inima casei. Parterul include living-ul, dining-ul şi anexele zonei de zi, bucătăria şi grup sanitar, fiind în relaţie directă cu zona de etaj şi cu spaţiul deschis de lucru / birou / ocazional dormitor. Parţial, nivelul 1 este rezervat dormitorului matrimonial. Relaţia spaţială interioară este ajutată şi potenţată de dispunerea pe jumătăţi de nivel a spaţiilor sus amintite. Orientarea nord şi vest a spaţiilor interioare oferă opţiuni speciale de rezolvare în privinţa faţadelor, a luminării şi ventilării naturale a spaţiilor. Plinul faţadei principale oferă locuinţei un ecran protector în direcţia nord în timp ce ferestrele în aceeaşi direcţie perforează planul faţadei. Coaja casei este spartă şi invadată de lumină din ambele direcţii, deşi raportul plin-gol este în favoarea plinului. Orientarea către nord şi vest a permis folosirea unei suprafeţe vitrate mari, fără a exista pericolul efectului de seră.
Detaşarea interioară a scării încearcă să marcheze şi ea, în inima casei, mariajul compoziţional al formelor exterioare – ecranul alb al faţadei vest, şi peretele perforat al faţadei de N, parţial placat cu lemn către zona de parter. În drum către terasă, grădina pe verticală îşi găseşte locul o seră, locul de refugiu şi meditaţie al locuinţei, în dialog cu perspectiva ce se deschide spre răsărit. Realizat cu mijloace simple, materiale şi tehnici autohtone, într-un spaţiu redus ca dimensiuni, dar cu efect maxim de spaţialitate, imaginea volumului propus, precum şi organizarea interioară, conferă ansamblului.
Arhitect: ALFA INVEST | Anca Mihaela Constantin, Ionuţ Constantin
Locatie: str. Poetului nr. 25, Bucuresti
Anul proiectului : 2011-2012
Indicatori : RH: d+P+2e | Sd: aprox 210 m2 | Su: aprox 165 m2 | POT: 45 % | CUT: 1,3
Fotograf: –
- Sursa: www.bnab.ro
- arhipura | pur si simplu arhitectură …






















buna ziua! care este deschiderea terenului?
Buna, in jur de 6 metri la strada,dupa estimarile rezultate din planuri
cam care este bugetul pentru o astefel de constructie?
Foarte interesant …..de viitor….