Clientul si-a dorit o casa cu gradina, acesta a fost principalul motiv ce la determinat sa se mute din centrul orasului Stockholm in acest loc minunat, la cativa pasii de lacul Mälaren. Prin urmare arhitectii au propus o casa cu gradina pe verticala, ca o prelungire a gradinii din jurul casei, unde spatiul exterior si cel interior se amesteca treptat si interactioneaza. In viitor se mizeaza ca vegetatia va imbraca complet fatadele din lemn ale casei. Atat structura casei si finisajele sunt realizate din lemn.
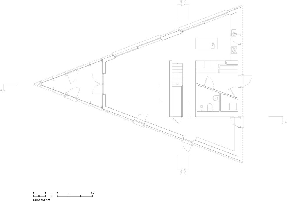
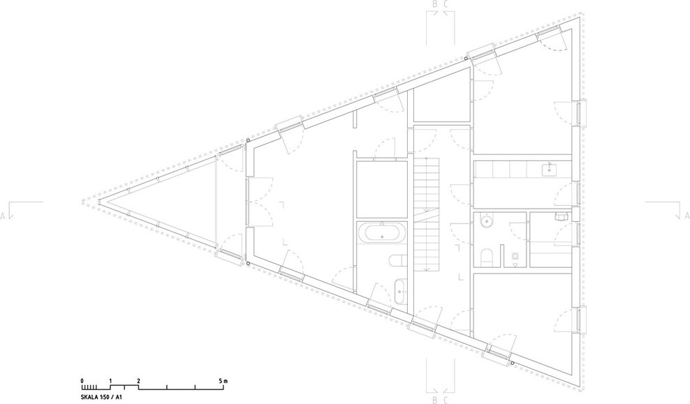
Forma triunghiulara in plan e rezultatul unei pante abrupte ce traverseaza pe diagonala terenul. Aceasta forma a ajutat si la eliminarea fatadei de pe nord, astfel obtinandu-se doua fatade lungi cu o orientare favorabila atat pentru iluminarea spatiilor dar cat si pentru cresterea vegetatiei.
Coltul cel mai ascutit al casei a fost transformat intr-o gradina/sera pe doua nivele ca inaltime, ce ajuta si la incalzirea naturala a aerului ce urmeaza sa fie introdus la interior. Terasa de pe acoperis ofera panorame interesante peste dealurile din apropiere spre lacul Mälaren.
Arhitect: Tham & Videgard Arkitekter
Locatie: Sodermanland, Suedia
Anul proiectarii : 2006-2008
Suprafata desfasurata : 360 mp
Suprafata teren: 1000 mp
Fotograf: Ake E:son Lindman
- Sursa: www.europaconcorsi.com
- arhipură | pur si simplu arhitectură …




























Wow ce casa, nu am mai vazut asa ceva pana acum. Interesant proiect.