Situata în Temozon Yucatán intr-o zona rezidentiala, casa este amplasata pe un teren pe colt si trapezoidal in plan. Latura lunga de 60 de metri spre est si latura de 39 metri lungime spre nord.
Spatiul casei este destinat sa creeze un mediu in care familia nu se limiteaza/ inchide intre ziduri, unde exterior este integrat si comunica cu interiorul, imbinate ca un singur mediu, subliniind punctele de vedere generate de diferite spatii.
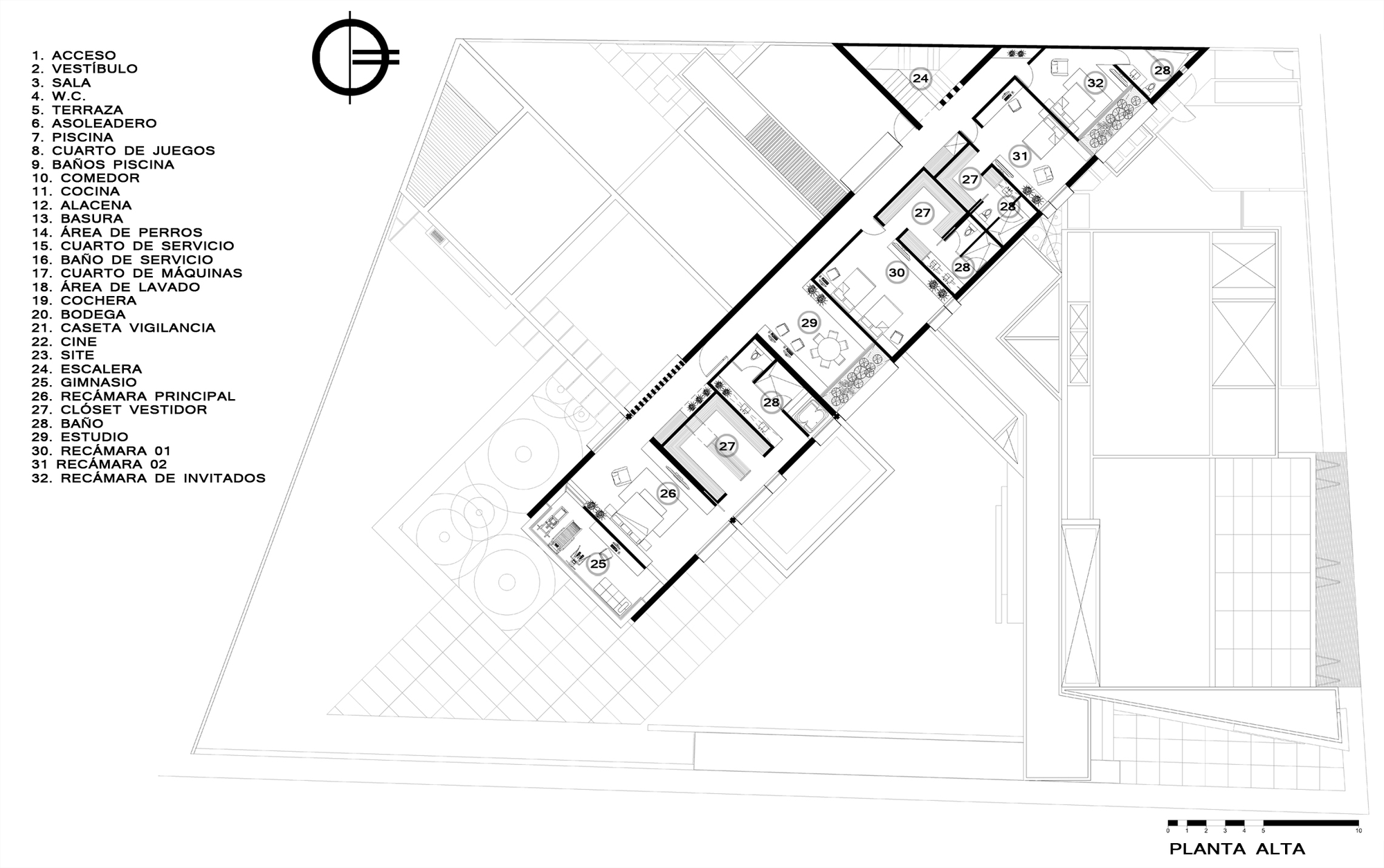
In acest scop, schema initiala a fost o forma de L, in care doua coridoare inconjoara terenul pentru a crea o gradina in centru, un coridor pentru servicii si celalalt pentru zona de living (sociala si privata). Ulterior, un coridor a fost translatat 45 de grade pentru a diminua puterea vanturile si a oferii o circulatie naturala a aerului mai eficienta. Aceasta miscare a permis, de asemenea, integrarea gradinii in zona rezidentiala.
In cele din urma, pentru a consolida conceptul, coridorul a fost impartit in doua sectiuni. Primul este situat intr-un volum solid aflat in consola deasupra solului; adaposteste zona privata si adaposteste domeniul social, cuprins de o serie de terase la diferite niveluri pentru a defini o ierarhie spatiala.
Arhitect: Carrillo Arquitectos y Asociados
Locatie: Yucatan, Mexic
Anul proiectarii/executiei : 2012-2013
Suprafata desfasurata : 1165 mp
Fotograf : David Cervera
- Sursa: www.archdaily.com
- arhipura | pur si simplu arhitectură …




















