Casa Soarelui si-a primit aceasta denumire pentru ca fiecare incapere a acesteia a fost astfel orientata incat sa beneficieze din plin de soare si de vederi panoramice catre coasta mediteraneana. Casa este compusa din zece volume agatate pe versantul stancos al coastei spaniole din Costa Brava. Imaginea deosebita a intregii compozitii volumetrice nu este doar un simplu artificiu estetic ci este si rezultatul diferitelor conditionari impuse de teren si amplasare.
Atunci cand clientii au cumparat acest teren cu deschidere spre mare si-au imaginat o casa care sa profite la maxim de panorama spectaculoasa a coastei. Cu toate acestea, o analiza mai atenta a terenului a scos la iveala o serie de provocari printre care cele mai serioase tinand de expunerea directa la vanturile dominante din peninsula si cantitatea redusa de lumina solara directa pe care o primea.
Echipa de arhitecti au conceput un design care sa raspunda in principal la aceste probleme frangmentand casa intr-o serie de cuburi cu o fatada integral vitrata, pozitionate la anumite unghiuri in plan astfel incat sa beneficieze de cat mai mult soare. „Casa este in sine un mare colector al energiei solare, un mijloc prin care lumina si caldura pot patrunde in fiecare camera – asemeni unei palarii de floarea-soarelui” declarau arhitectii.
Anvelopanta este realizata dintr-o tencuiala decorativa de culoare alba, ceea ce creaza un contrast placut cu relieful stancos al versantului si pune in evidenta volumele geometrice ale compozitiei.
Casa are cinci cuburi pe nivel, puse unele peste celelalte iar fatadele orientate spre mare sunt integral vitrate, sticla folosita fiind una groasa si cu rezistenta sporita la vanturile puternice incarcate cu apa sarata ce vin dinspre mare.
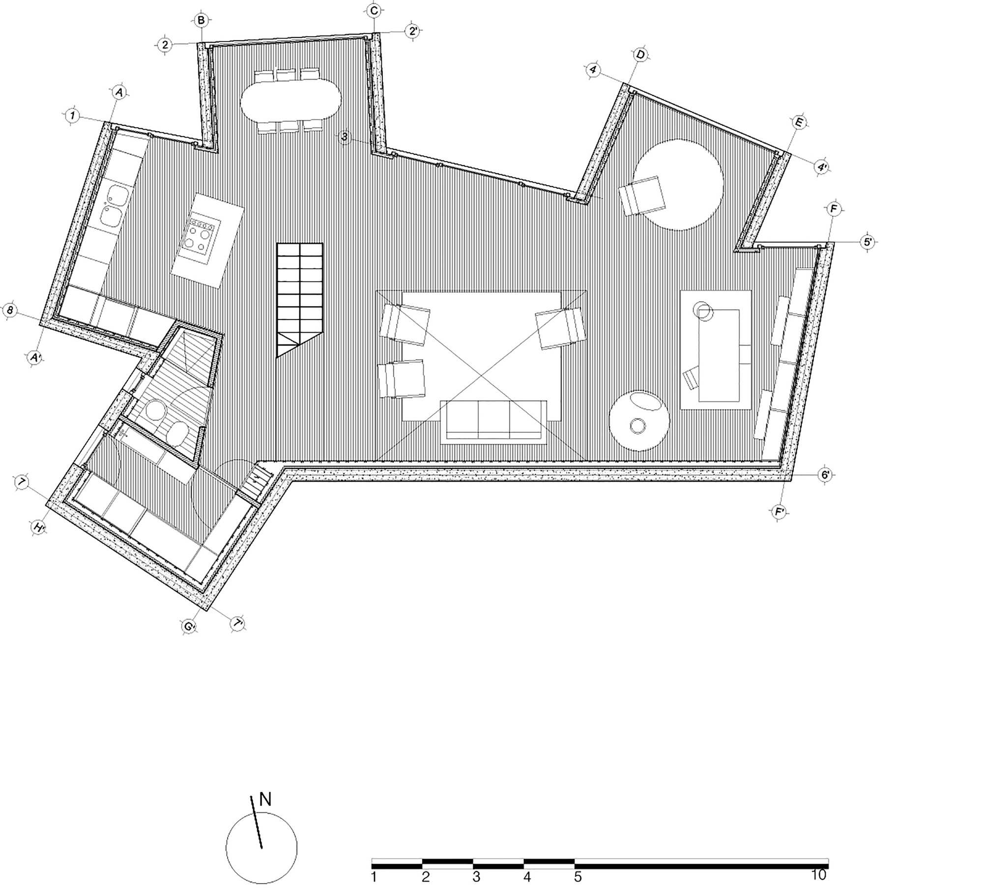
Asemeni exteriorului cu forme simple si finisaje minimaliste, spatiile interioare se remarca printr-o atmosfera aerisita si detalii contemporane. Spatiile comune au fost amplasate la parter in vreme ce prin intermediul unei scari amplasata in living se poate ajunge la etaj unde se afla zonele private, cele trei dormitoare cu doua bai pentru membrii familiei si un dormitor pentru oaspeti. Zona de discutii de la parter se remarca printr-un volum mai amplu realizat prin decuparea tavanului si vitraje amplasate la partea superioara ce permit luminii soarelui sa patrunda adanc in interior.
Avand in vedere locatia, o casa ca aceasta nu era completa daca arhitectii nu ar fi realizat si o serie de balcoane si terase, menite sa le ofere membrilor familiei zone de recreere si o piscina pentru zilele toride de vara.
Arhitect: Cadaval & Solà-Morales
Locatie: Girona, Spania
Anul proiectarii/executiei : 2014
Suprafata desfasurata : 250 mp
Fotograf : Sandra Pereznieto































Un gând despre &8222;Casa Soarelui | Spania&8221;