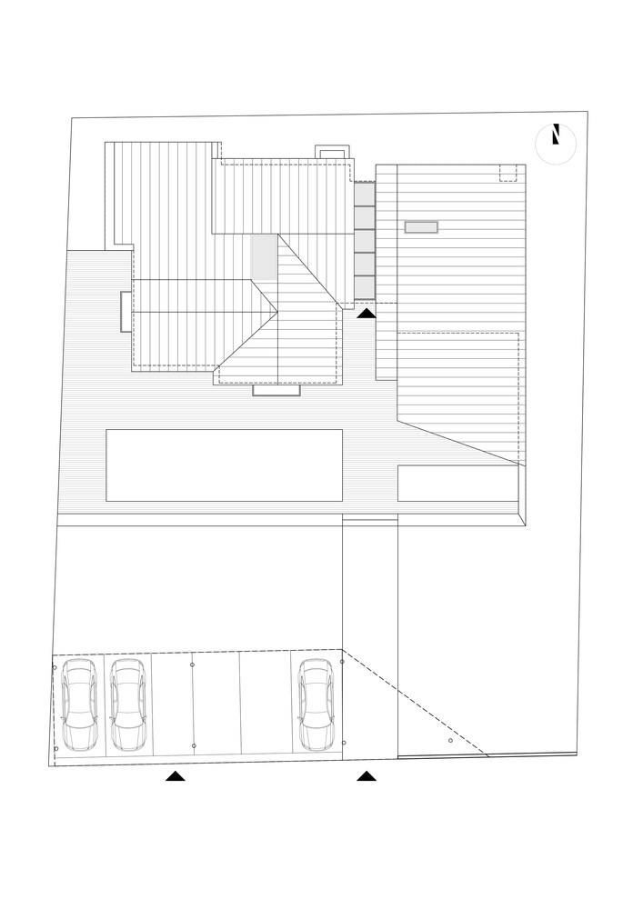
Scopul acestui proiect a fost consolidarea și extinderea clădirii existente (curațată de detalii și esențializată) cu un volum ce pornește de la forma clasică a corpului existent, reinterpretând într-o formă contemporană acoperișul în două ape. Se obține astfel un dialog între cele două volume, o punte între trecut și prezent. Foaia de beton pare a se plia în jurul casei vechi, asemenea unui origami.
Ansamblul nou creat se coagulează și prin amplasarea volumelor pe o mare dală de lemn, ce integrează piscina și o mare jardinieră. Articularea celor doua volume marcheaza intrarea, folosindu-se o copertină de beton și un luminator pentru a te ghida către miezul casei.
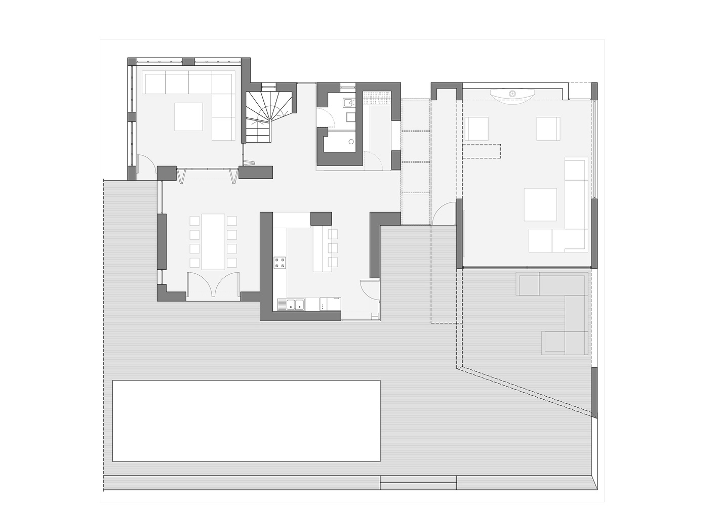
Extensia conține un living dinamic, aerisit, cu o legatură directă cu exteriorul, iar corpul vechi integrează restul spațiilor necesare unei locuințe unifamiliale. Etajul se amplasează în volumul vechi și a rezultat în urma desființării podului și creșterii amplitudinii pe înalțime a spațiilor.
Dintre materialele utilizate amintim solzii de țiglă recuperați de pe acoperișul cladirii vechi și repozitionați pe fatadă adiacent intrarii și grinzile de lemn recuperate și refolosite la interior.
Arhitect: LAMA ARHITECTURA
Locatie: Otopeni, Romania
Anul proiectarii/executiei: 2015
Suprafata desfasurata: 180 mp
Fotograf: Radu Malașincu































ceva de vis super,ce firma a facut casa asta?foarte sculpturala
vreau si eu ceva de genul asta insa la un buget mic,nu gasesti la noi decat kitschuri
Da, e interesanta abordarea. Gasesti arhitectul in descrierea proiectului. Bafta sper sa gasesti si realizezi ce iti doresti.