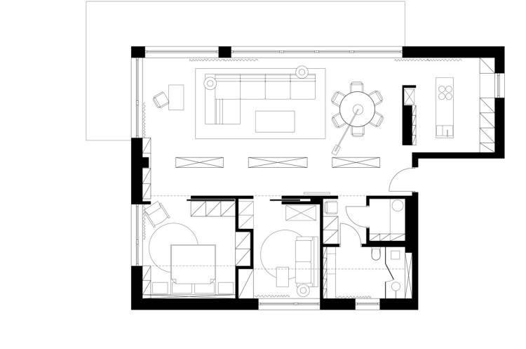
Acest minunat apartament, cu suprafata de 110 mp din Poznan, Polonia a fost proiectat de designerii studioului PL.architekci. Inspiratia pentru amenajarea acestui apartament a fost colectia de picturi, carti si mobila veche care apartine proprietarului.
Ca punct de plecare, proprietarul a dorit sa obtina un spatiu valorificat la maxim, iar ambianta interioara sa fie destinsa, elementele care ii definesc stilul de viata – micile detalii de artizanat sa fie odornate – initial erau sufocante datorita abundentei si dezorganizarii. Astfel pentru a raspunde cerintei s-a apelat la o amenajare minimalista, cu putine detalii de decor, cu accesorii fine de mobilier. Dulapurile pentru multitudinea de carti a fost proiectat in asa fel incat sa fie un separeu intre spatiul de zi si traseul catre zona de noapte.
Anumite elemente ale colectiei proprietarului au fost depozitate in spatiile inchise, altele au fost lasate pentru a fi observate. In acest mod s-a ajuns la realizarea unui ritm plin-gol care inrameaza perfect dorinta proprietarului. Fiind in apropiere de un parc, geamurile au fost propuse pe toata zona livingului si a locului de luat masa in intentia de a umple spatiul cu lumina naturala – sa devina un reflector pentru dulapurile zonei de zi, dar si pentru a imbogati atmosfera cu peisajul natural.



















Pare super interesant, vreau sa mai contruiesc o anexa la casa si pozele din acest articol chiar m-au inpirat. Problema este ca nu sunt un fan al perdelelor, prin urmare am comandat de pe acest site http://jaluzele.net/ niste panouri japoneze care sunt foarte usor de manevrat si de curatat. Oricum, constructia pare foarte interesanta, dar presupun ca si pretul realizarii este pe masura.