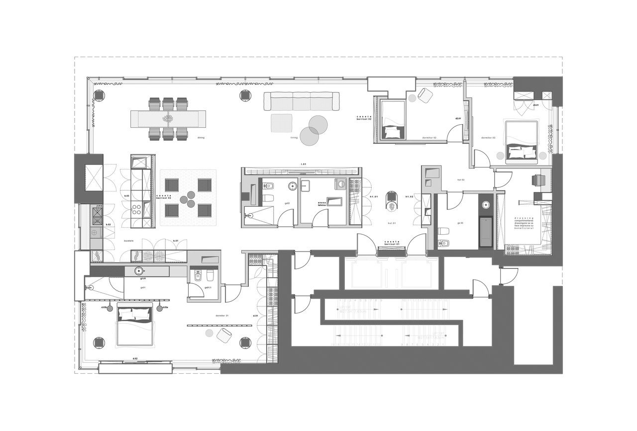
Principiul dupa care s-a ghidat echipa Eduard Baicu, Cristian Matei, Andrei Oțet si colaboratorii în amenajarea penthouse-ului DO a fost acela de a integra elemente ce au ca principal rol unul functional si de a reduce la minim orice interventie cu scop pur decorativ, rezultand astfel un spatiu aerisit, simplu si curat. Lumina calda, texturile în culori pamantii, nuantele pastelate, vin în completarea materialelor reci precum marmura sau metalul. Din dorinta de a evita reflexiile pe suprafetele orizontale lucioase, s-a optat pentru un iluminat vertical, realizat prin intermediul suprafetelor luminoase si al fantelor de lumina, înlocuind astfel iluminatul clasic din plafon.Un alt avantaj al iluminatului vertical prezent atat în zona de zi, cat si în zona de noapte, a fost acela de a pastra o suprafata continua la nivelul plafonului si de a crea efectul vizual de spatiu înalt.




































