Situat într-un context privilegiat, Salonul LMB exploreaza limitele dintre spatiul interior şi exterior .Limitele propuse între spatiile deschise şi cele inchise fuzioneaza pentru a genera o singură entitate arhitectural în care rolul principal il are spaţiu deschis situat în zona centrală a proiectului.
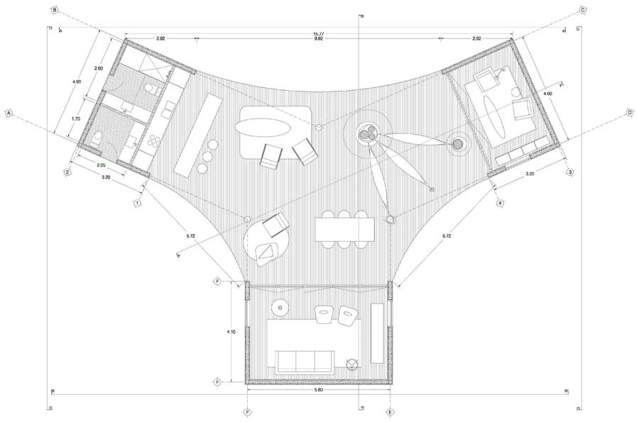
Locuinta e formata din 3 zone independente.Prima conţine un bar, o bucatarie deschisa cu zone de serviciu, a doua este o zonă de joacă pentru copii sau de lectură pe timp de noapte, si în cele din urmă a treia şi cea mai mare este livingul,zona de conversatie, TV, meciuri de fotbal.
Aceste 3 organisme independente sunt articulate printr-un spaţiu central deschis şi flexibil, care îi permite să genereze o mulţime de activităţi. Acest spatiu este legat de alţi mari factori în cadrul proiectului : curti deschise, domenii de activitate în aer liber conţinute de grădini tropicale cu vegetaţie şi culori vii ce isi lasa amprenta pe un obiect de arhitectura neutru…
Arhitect: Cadaval & Solà-Morales
Colaboratori: Eugenio Eraña, Manuel Tojal, Tomas Clara
Locatie: Tepoztlan, México City
Anul proiectului: 2011 / in constructie
Fotograf: Cadaval & Solà-Morales
- Sursa: Cadaval & Solà-Morales
- arhipură – pur si simplu arhitectură …

















