Aceasta casa moderna cu deschidere spre malul marii Celtice, peninsula Crozon, a fost proiectata de biroul de arhitectura Pierre-Yves Le Goaziou, iar casa a fost gata pentru beneficiarii sai in 2012.
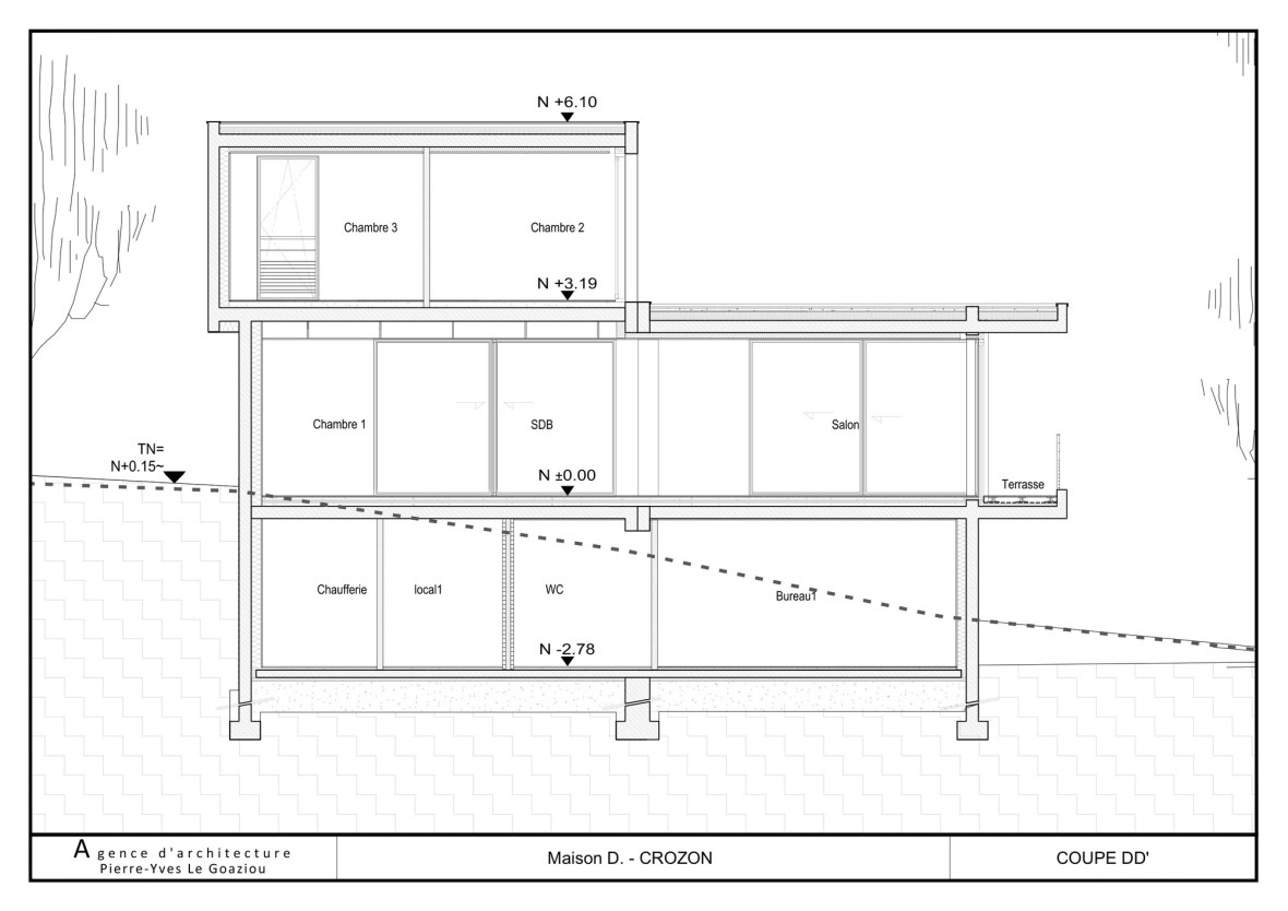
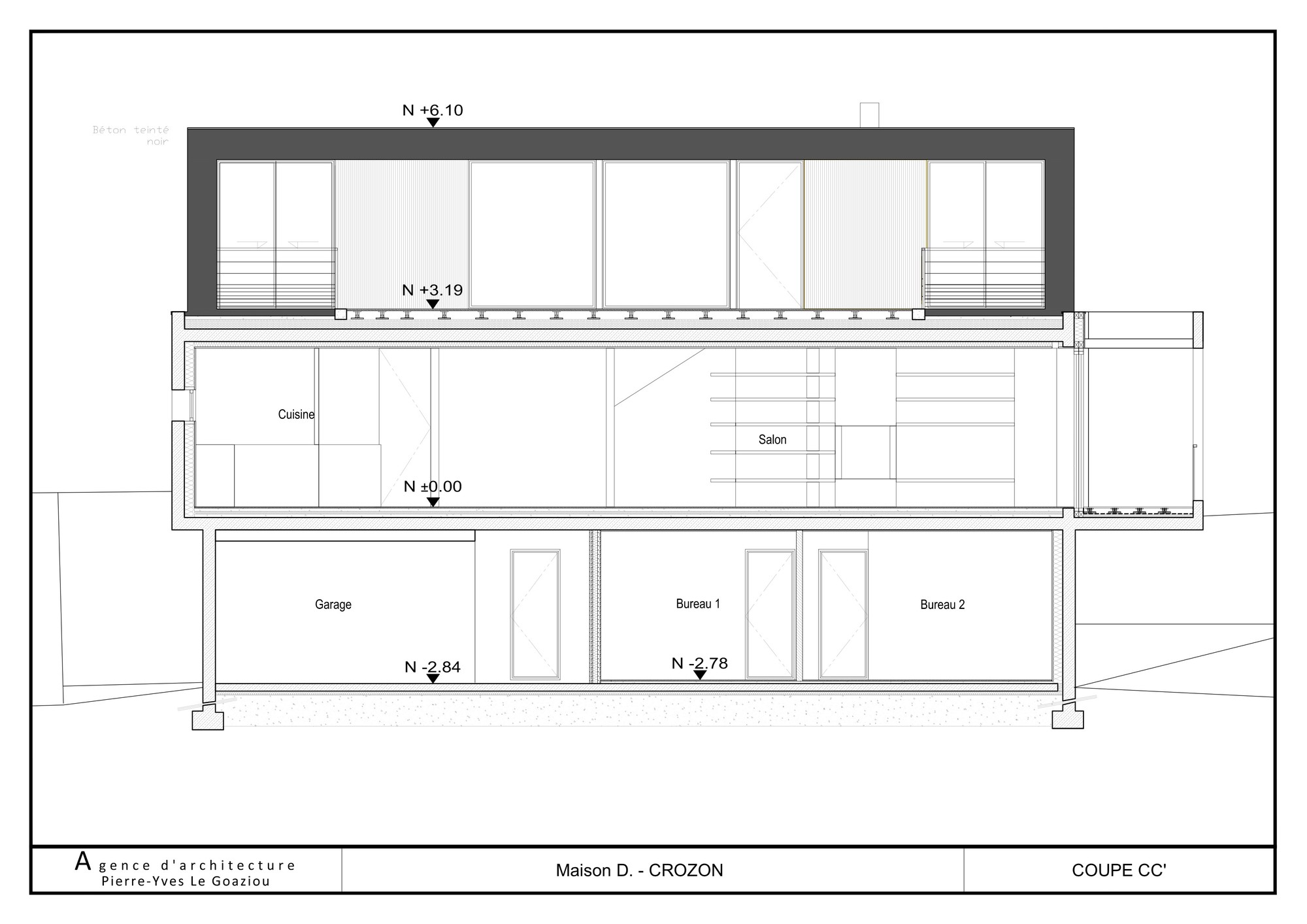
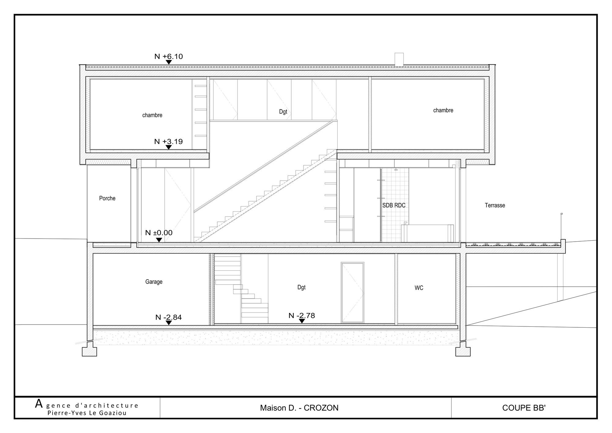
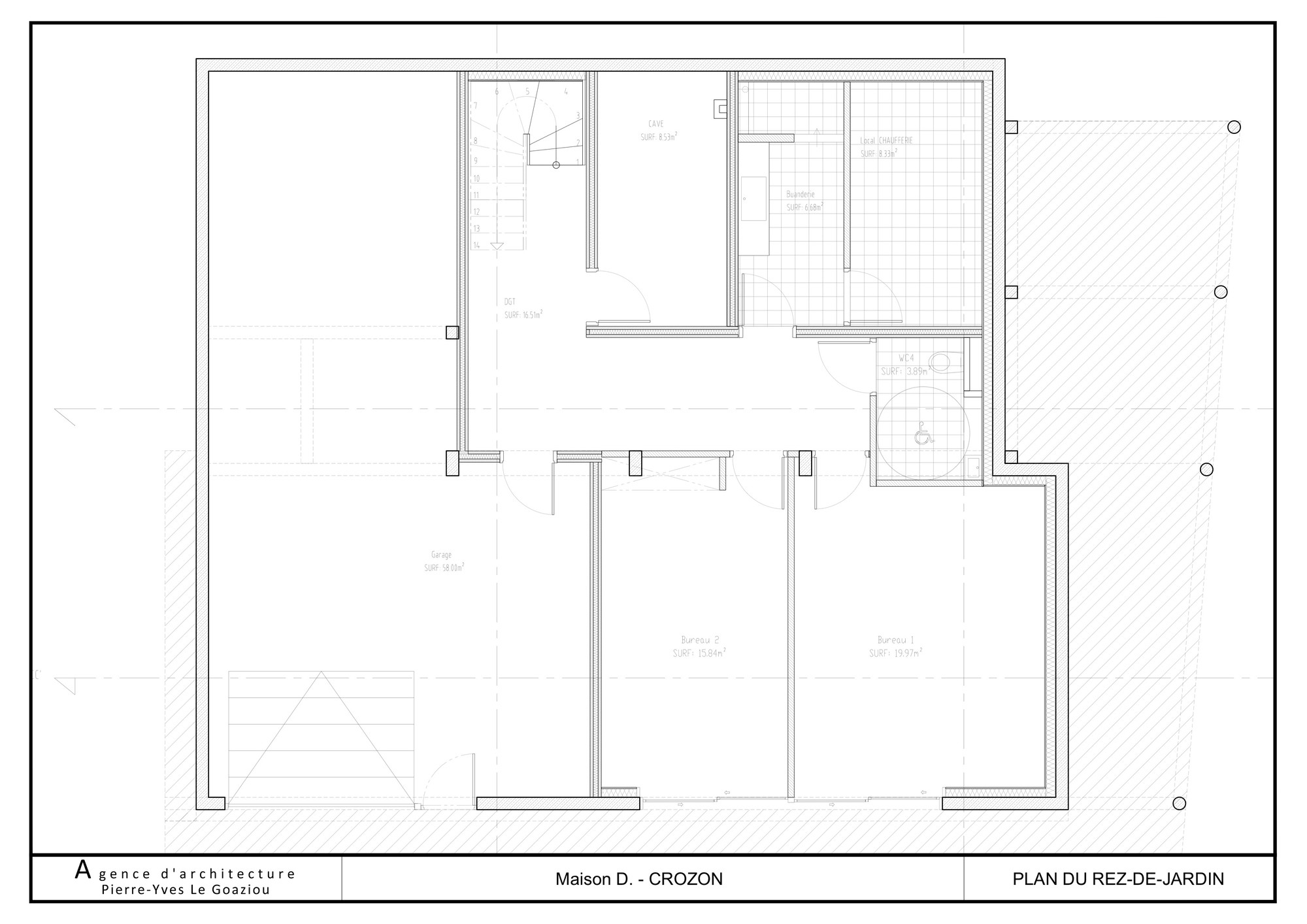
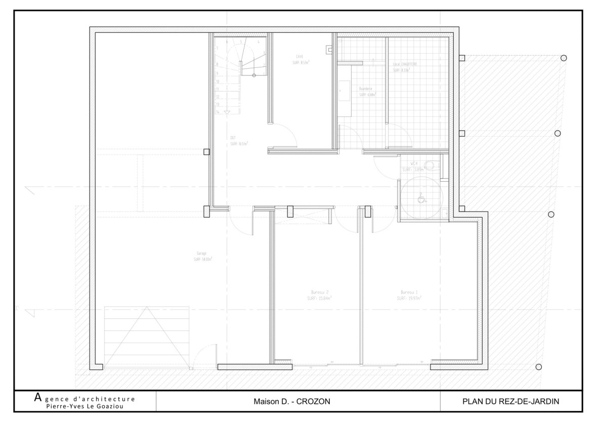
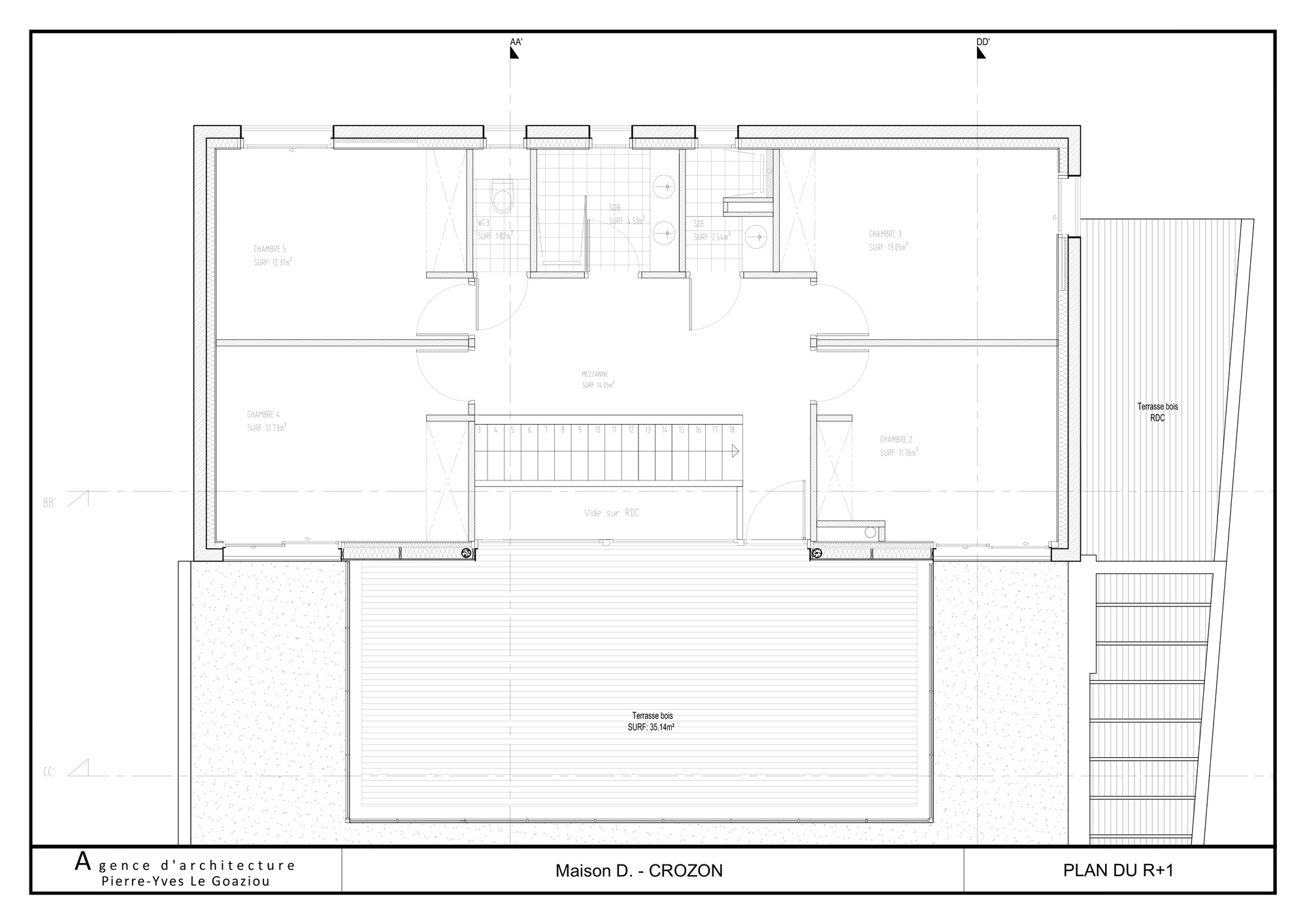
Constructia este dispusa pe trei niveluri, din care doua cu iesiri in consola. Este o casa low-energy, deci la proiectarea sa au fost respectate anumite principii: orientare fata de punctele cardinale, materiale folosite, dispunerea functiunilor. Astfel, fatada sudica beneficiaza de deschideri ample, scopul fiind ca lumina si caldura soarelui sa fie captate cat mai eficient, in vreme ce fatada nordica si estica au foarte putine deschideri, pentru a limita pierderile energetice.
Fatada sudica se deschide puternic spre peisajul din jur: marea cat vezi cu ochii, pini, coaste abrupte. Asezarea pe teren e exceptionala, iar arhitectii au profitat la maxim de ce le-a oferit natura in acest loc. Interioarele se deschid spre exterior, iar principalul punct focal aici sunt fabuloasele privelisti panoramice surprinse prin generoasele zone vitrate.
Arhitect: Pierre-Yves Le Goaziou
Locatie: Crozon, Franta
Anul proiectarii/executiei : 2012
Suprafata desfasurata : 276 mp
Fotograf : Pascal Leopold
































