Casa ‘S’ s-a „născut” la solicitarea unui cuplu de a realiza un imobil cu două apartamente, pe un versant cu o pantă destul de accentuată care oferă o privelişte spectaculoasă asupra Clujului.
Imobilul se adaptează terenului şi dorinţei clienţilor de a beneficia de intimitate în ambele apartamente. Apartamentul principal s-a dezvoltat pe parter şi demisol orientându-se spre gradină, care devine centrul de interes a acestuia, în timp ce apartamentul de la etaj profită de priveliştile din împrejurimi.
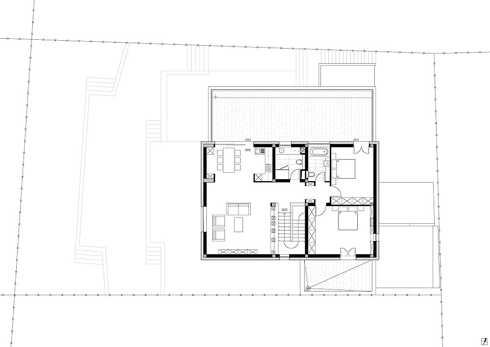
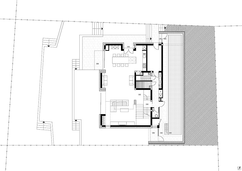
Partiul apartamentului principal este relativ simplu, adaptându-se profilului beneficiarilor – zona de noapte la nivelul parterului şi zona activităţilor de zi (living, dinning, piscină) la nivelul demisolului, relaţionând cu grădina. Aceste zone sunt legate prin intermediul unui gol vertical în care sunt amplasate scara, biroul şi biblioteca.
Limbajul arhitectural de tratare a imobilului este unul modern, cu linii minimaliste, volume clare care se ansamblează într-o compoziţie armonioasă. Spre stradă imaginea generală este de închidere, imobilul comunicând discret organizarea interioară.
Conceptul de design interior se bazează pe alăturarea unor elemente puternice, atât în privinţa volumelor, cât şi a valenţelor cromatice. Atributele imagistice ale acestora coexistă în spatii clar conturate şi distribuite, care redau senzaţii puternice. Finisajele diverse, alternanţele texturale mat vs lucios/ opac vs transparent, cromatica antagonică a elementelor de mobilier, jocurile de lumini, modulează spatiul şi îl pun în valoare.
Arhitect: ESTUDIO
Locatie: Cluj-Napoca, Romania
Anul constructiei: 2007-2009
Suprafata construita desfasurata : 648 mp
Fotograf : Serban Bonciocat, Dan Dulau
- Sursa: ESTUDIO / www.arhiforum.ro
- arhipură – pur si simplu arhitectură …















![01.1 DEMISOL A [Converted]](https://arhipura.com/wp-content/uploads/2012/06/estudio-casa-s-demisol_arhipura.jpg?w=1180)



Arata foarte bine. Un design atat de minimalist cu linii simple. Si totusi, avangardist…