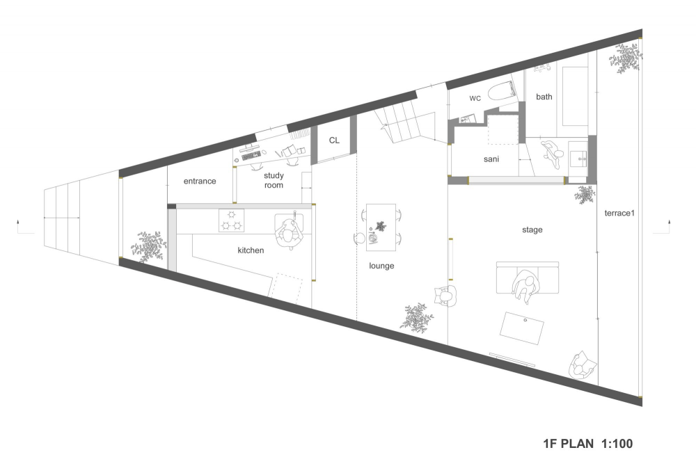
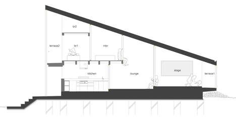
Casa Ogaki, este proiectata de arhitectii de la Katsutoshi Sasaki + Associates si a fost construita in Toyota, Aichi – Japonia pe un teren cu o suprafata de 466mp. Spatiul interior este alcatuit din doua „cadre” unul care se deschide catre est, dezvoltandu-se pe verticala si un altul care se deschide pe orizontala, spre vest. Spatiul functioneaza prin legarea celor doua fante si descreste treptat in inaltime, de la est la vest. Interiorul este organizat pe un plan liber, obinandu-se efectul de spatiu unitar.
Arhitectul declara ca ideea pentru designul casei a avut la baza „crearea unei singure camere care sa permita familiei sa stea impreuna, dar fara ca membrii acesteia sa poata vedea direct in spatiul celuilalt”. La exterior volumul casei a fost inaltat pe un mal de pamant astfel incat sa creeze o relatie cu peisajul inconjurator si sa ofere interioarelor deschidere neobturata catre acesta. Anvelopanta de culoare neagra, realizata din sipci de lemn vopsite, evidentiaza volumul din restul cladirilor invecinate.
La interior zona de acces a fost organizata in partea inalta a cladirii, spatiul urmand o panta descendenta care se opreste intr-o zona de living generoasa. Tamplaria ferestrelor si a usilor a fost realizata din lemn, definind astfel o granita vizibila intre fiecare sectiune a casei, incadrand spatiul din afara si de dupa acestea dar pastrand in acelasi timp si rolul de element de legatura.
Echipa de arhitecti este recunoscuta pentru proiectele lor rezidentiale, in care urmaresc sa creeze spatii care sa le permita membrilor familiei sa traiasca in armonie dar in acelasi timp sa beneficieze de confort si intimitate.
Arhitect: Katsutoshi Sasaki + Associates
Locatie: Toyota, Aichi, Japonia
Anul proiectarii/executiei : 2011- 2012
Suprafata desfasurata : 85 mp
Fotograf : Katsutoshi Sasaki + Associates
- Sursa: www.spatiulconstruit.ro
- arhipura | pur si simplu arhitectură …















Un gând despre &8222;Casa Ogaki | Japonia&8221;