Casa prezentata este situata intr-un cartier rezidential din apropierea orasului Ljubljana.Conceptul a fost definit de stilul de viata specific al clientului si de nevoile sale.
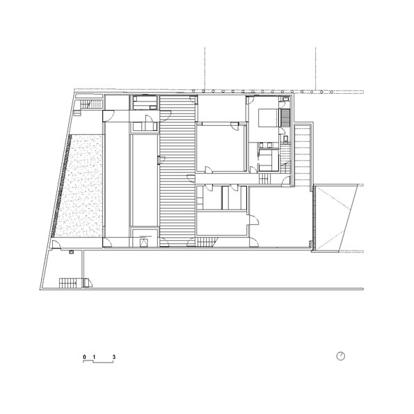
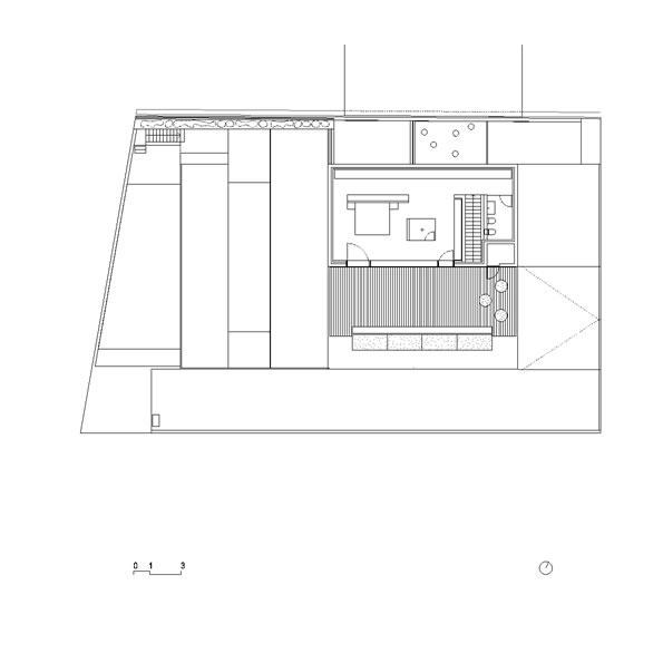
Un cuplu tanar fara copii si-au dorit o casa cu o camera de zi,un singur dormitor si o sala de sport/gimnastica.Pe cat par de simple aceste cerinte,sacina a fost destul de complexa- s-au cerut destul de multe pentru un teren relativ mic.O mare parte a casei este, prin urmare, ascunsa în pământ formând o lume introvertita retrasa de privirile din împrejurimi.
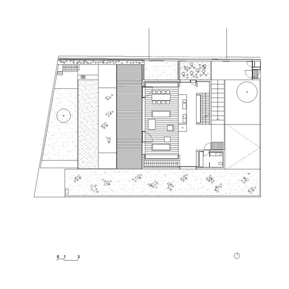
Fiecare etaj al casei oferă un nivel diferit de intimitate şi o relatie cu spaţiul exterior.
Spatiul de sport subteran care conţine un spatiu de lucru, sala de fitness, sauna, piscina, sala de muzică şi trei atriuri, formează o bază solida a casei ce acoperă aproape întreaga parcelă. Acesta este punctata prin atriumuri stabilind o relaţie continuă între interior şi spaţiile exterioare. Camerele şi piscina sunt incadrate de pereti de sticla care permit luminii naturale sa intre în spaţiu.
Livingul cu zona de acces, bucataria deschisa si zona de luat masa populează primul etaj şi se continuă pe terasa exterioara dubland spatiul.Terasa are vedere spre zona protejata verde din vecinatate, deţinută de către oraş, care devine extensia „vizuala” a grădinii casei.
Casa este organizata ca o serie de secvenţe planificate spaţial cu atentie, începând cu gradina din fata. Aceasta gradina este deschisă, nu îngrădite ca grădinile din vecinătate, şi formează o suprafaţă aproape semi-publica, care aparţine simultan atat strazii cat si casei.
Casa este construita din beton care a permis o deschidere vasta a spatiilor. Betonul a fost turnat la fata locului, a fost slefuit si lustruit, dezvăluind un caracter sedimental al materialului.
Aspectul exterior al casa este enigmatic, complet diferit de casele din cartier. Volumul cubic inchis cu o fatada spre strada din beton lustruit nu dezvăluie nimic din luxul spatiului interior.
Arhitect: Bevk Perovic Arhitekti / Matija Bevk, Vasa J. Perović, Uršula Oitzl
Locatie: Ljubljana, Slovenia
Structural engineering: Vít Hušek
Suprafata teren: 627,64 mp
Proiect: 2005-2007
Fotograf: Miran Kambič
- Sursa: Bevk Perovic Arhitekti / www.noticiasarquitectura.info
- arhipură – pur si simplu arhitectură …

















5 gânduri despre &8222;House D in Ljubljana / Slovenia&8221;