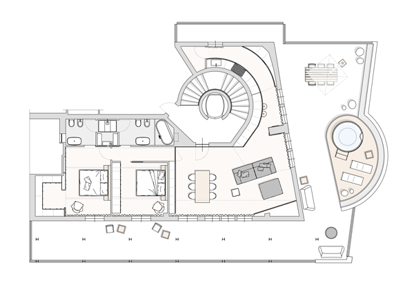
O casa in miniatura, in stilul minimalist al designerilor studioului Studiòvo, este amplasata intr-un loc retras al Toscanei, Italia. Suprafata utila a casei de aproximativ 120mp a fost inglobata intr-o volumetrie simpla. Casa se imparte in zona de zi, doua dormitoare, doua bai, o baie turceasca (hamman) si o terasa extraordinara cu o imagine panoramica asupra peisajelor. Paleta de alb si gri neutru a fost presarata cu pete negre pentru a aduce rafinament in amenajare. Parchetul masiv din stejar si mobila moderna creeaza o imagine unitara si plina de confort. Sistemul de iluminat a fost gandit intr-un mod ingenios, astfel incat si proprietarul si oaspetii pot sa isi stabileasca cantitatea necesara de lumina. Terasa ofera imagini minunate asupra orasului vechi. Pentru a aduce valoare si spatiului exterior, terasa a fost dotata cu un mini bazin cu hidromasaj si o zona confortabila pentru odihna.






























Un gând despre &8222;Casa in stil minimalist | Italia&8221;