Proiectul renovării acestei case tipice victoriene, din cartierul londonez Highbury Hills, este realizat de arhitecții de la Paul Archer Design, iar punctul cheie al noii extinderi inguste este reprezentat de spațioasa bucătărie cu înățime dublă, rezultată din jocul de volume din sticlă fără rame și panouri liniare din lemn stratificat. Cutia strcturală de sticlă permite luminii directe a soarelui să pătrundă adânc în planul casei.
Nivelurile superioare ale extinderii sunt placate atât la interior cât și la exterior cu lamele din lemn stratificat de brad Douglas, accentuând interacțiunea dintre volume. Placarea se extinde și pe partea vitrată exterioară a extinderii, structurând lumina și furnizând umbră.
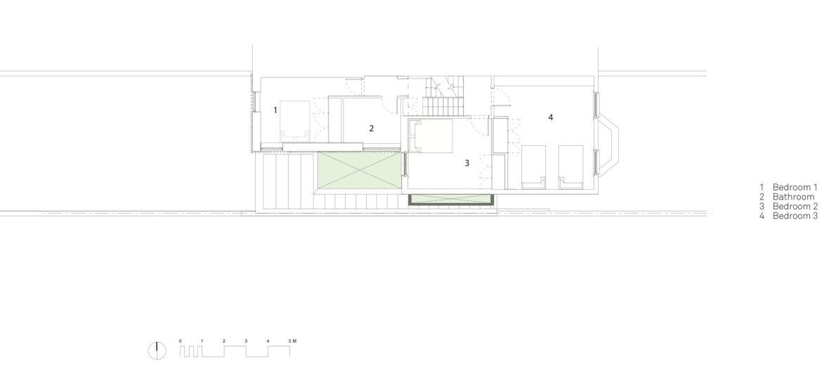
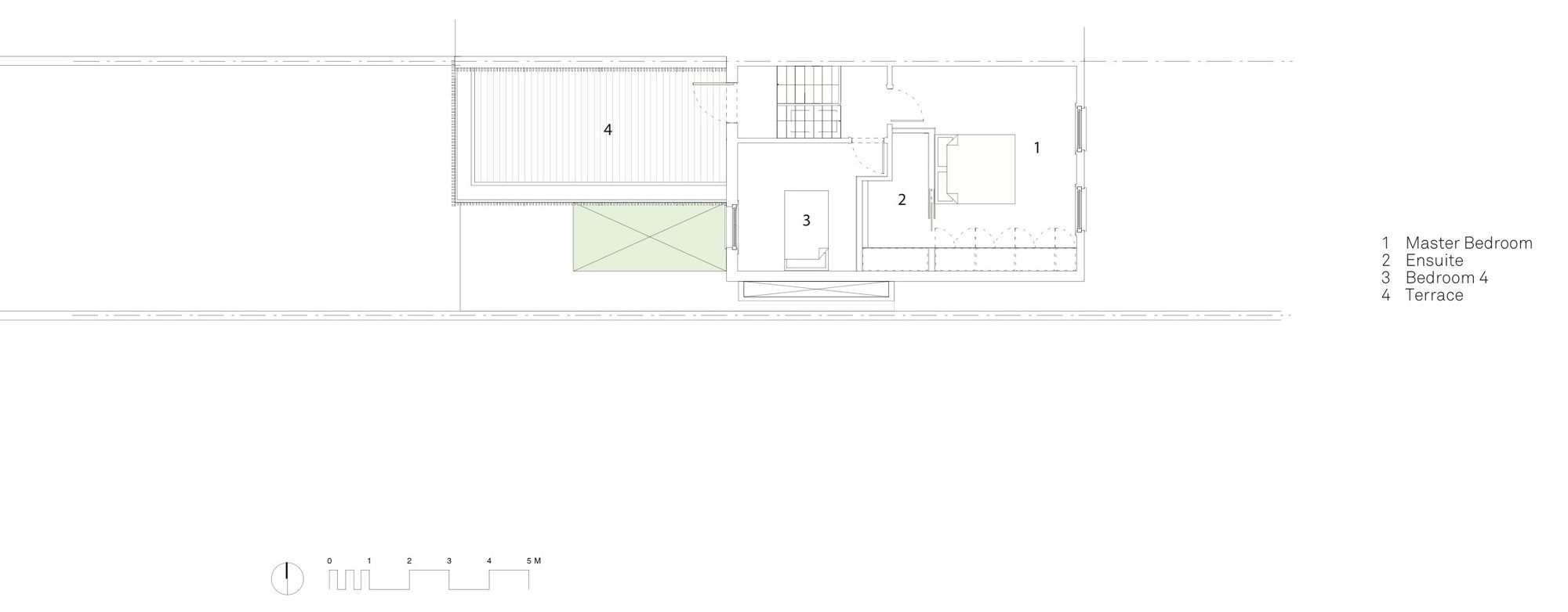
Arhitecții au creat un nou nivel întreg parter sub casa originală. Acesta are un plan deschis, unde o varietate de activități – de gătit, de luat masa și relaxare – pot avea loc simultan, Ușile pliante complete din sticlă oferă acces direct către terasa din grădină.
Un perete din sticlă al camerei de muzică de la primul nivel, furnizează lumina naturală în casa originală și face o legătură între cele două spații. Lemnul dă un efect frapant în această casă și este abundent în toate aspectele proiectului pornind de la placarea liniară a peretelui exterior de sticlă, la pardoseala terasei exterioare, pardoselile interioare, spațiile de depozitare deghizate în pereți și scaune-bancă, precum și la insula cu bar de mic dejun situată de-a lungul bucătăriei.
Proiectul a fost inspirat din dragostea beneficiarului pentru aer liber și gustul acestuia pentru un design nordic, demonstrând modul în care lumina naturală și materialele pot fi combinate pentru a crea un fundal pentru mobilier contemporan simplu, dar elegant.
Arhitect: Paul Archer Design
Locatie: Londra, Anglia
Anul proiectarii/executiei: 2013
Suprafata desfasurata: 230 mp
Fotograf: Andy Stagg












