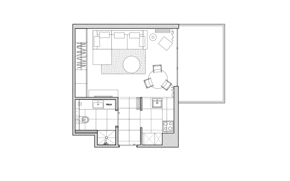
Aceasta amenajare interioara a fost realizata de echipa poloneza Raca Architekci si au reusit sa dea o noua identitate unui apartament de 36mp din Gdansk, Polonia. De cum deschizi usa intri in contact cu cel mai interesant detaliu folosit in aceasta amenajare: un perete intreg decorat cu elemente triunghiulare din material textil gri (fetru) de diferite grosimi si marimi. Felul in care a fost placat, modelul ales si accentele de verde-turcoaz dau un aer proaspat micului apartament.






















Un gând despre &8222;Amenajare moderna pentru un apartament mic de 36mp&8221;