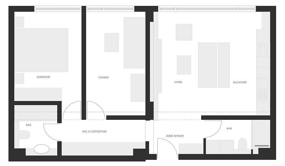
Doi dintre designerii de la Davisign, Catalin Davin si Andreea Iancu au amenajat acest apartament modern in Oradea. Apartamentul de aproximativ 64mp, este detinut de un cuplu tanar fara copii, care si-au dorit un apartament calduros cu o atmosfera calma si primitoare cu influente nordice, cu un spatiu cat mai functional si multe spatii de depozitare bine integrate in amenajare. Ce a rezultat se vede mai jos, iar mai multe informatii se gasesc in linkurile din sursa.



































Un gând despre &8222;Apartament luminos de 64mp pentru un cuplu tanar&8221;