























Dune House propusa de studioul Marc Koehler Architects se afla pe insula Terschelling din Olanda, cu vedere spre Marea de Nord.
La nivel formal se poate identifica cu usurinta o compozitie volumetrica care seamana cu un diamant placat cu lemn. Aceasta forma a constructiei a fost determinata de conditiile meteorologie din zona, cat si elementele inconjuratoare – marea, lumina naturala, directia predominanta a vanturilor.
Acest proiect a devenit unul neobisnuit si unic, de aceea au fost utilizate materiale alese cu strictete pentru a obtine constructia conceputa. La interior domina armonia si dragostea catre forme, care abundate de lumina naturala si creeaza poezia spatiului interior.
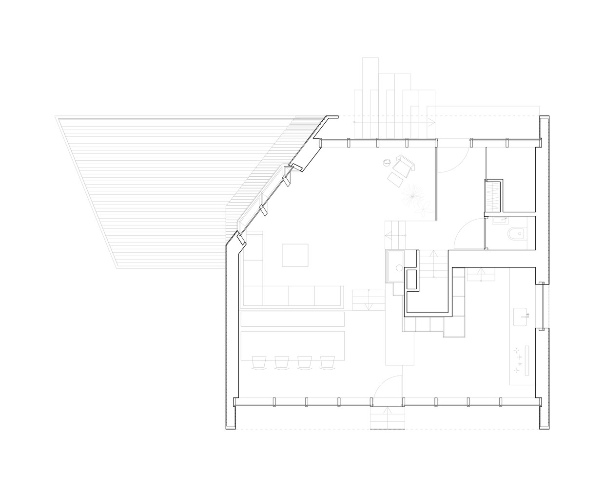
Tot spatiul interior este rezolvat simplu prin jocul cotei de calcare, unde spatiile de interior sunt cu un pas mai inalte fata de celelalte. Acest artificiu creeaza o separare a spatiului interior la nivel fizic, dar care la nivel vizual se prezinta ca un spatiu continuu.
Chintesenta constructiei o prezinta utilizarea lemnului si pietrei, cat si rezolvarea ecologica prin utilizarea unor tuburi solare si a unui semineu artificial.
Arhitect: Marc Koehler Architects
Locatie: Terschelling, Olanda
Anul proiectarii/executiei : 2014-2015
Suprafata desfasurata : 180 mp
Fotograf : Filip Dujardin