

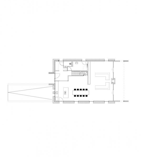
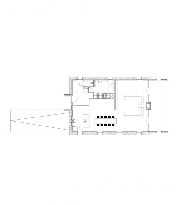
Arhitect : Arjen Reas
Locatie : Zoetermeer , olanda
Suprafata totala : 744 mp
Anul proiectului : 2010
Fotograf : Kees Hageman
- Sursa: Arjen Reas / www.archdaily.com / www.arkinetia.com
- arhipură – pur si simplu arhitectură …


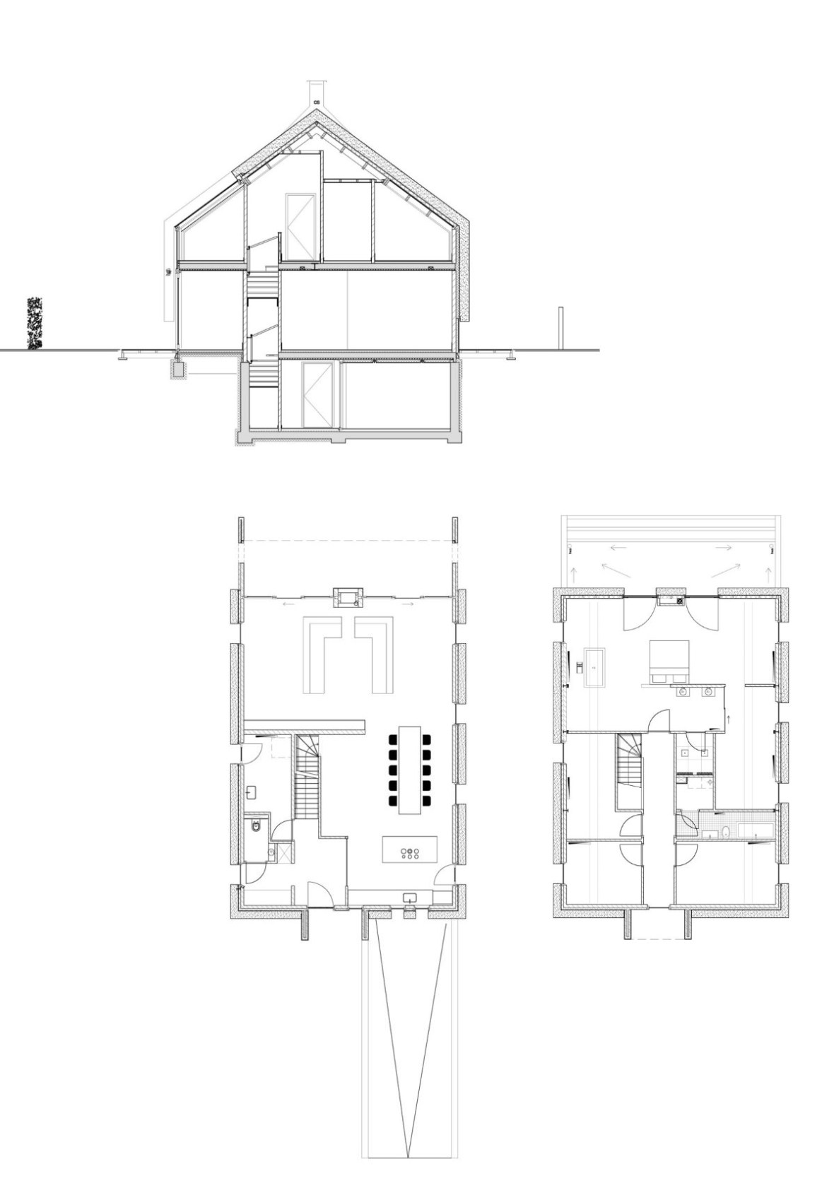
Arhitect : Arjen Reas
Locatie : Zoetermeer , olanda
Suprafata totala : 744 mp
Anul proiectului : 2010
Fotograf : Kees Hageman
2 gânduri despre &8222;Casa Viviendo al Límite&8221;