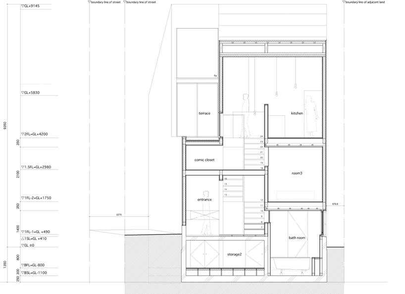
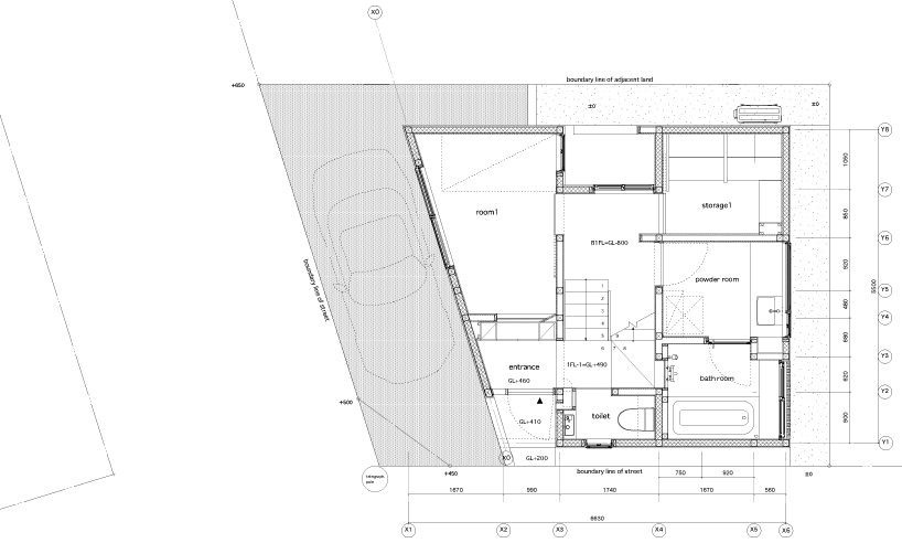
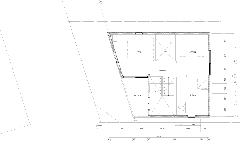
house in minami magome / Casa urbana iunie 16, 2011iunie 16, 2011 • arhipura Partajează asta: Partajează pe Facebook(Se deschide într-o fereastră nouă) Facebook Partajează pe Pinterest(Se deschide într-o fereastră nouă) Pinterest Partajează pe X(Se deschide într-o fereastră nouă) X Partajează pe Tumblr(Se deschide într-o fereastră nouă) Tumblr Apreciază Încarc...