Aceasta casa din beton aparent rosu se afla la periferia orasului Stuttgart si a fost realizata de firma de arhitectura Finckh Architekten. Pe langa culoarea puternica, casa atrage atentia si datorita etajului ce iese cu o consola peste intreaga zona de acces auto ( consola devine acoperire pentru autovehicul).
Casa Ostfildern are doua etaje standard (parter si etajul 1) si un acoperis ascutit, incadrandu-se perfect in stilul arhitectural al zonei.
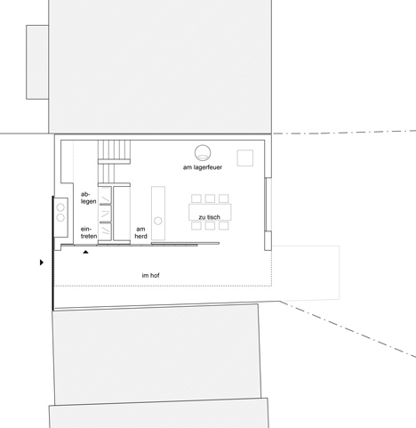
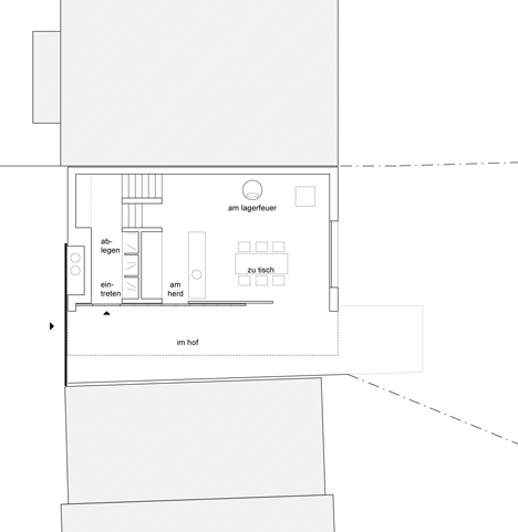
Usa principala este pozitionata pe latura dinspre accesul auto si impreuna cu un perete din sticla gliseaza , astfel toata camera de zi se deschide spre curte si terasa din imediata apropiere. De asemenea limita dintre zona publica si privata este realizata cu o poarta mare neagra ce gliseaza de-a lungul fatadei principale.
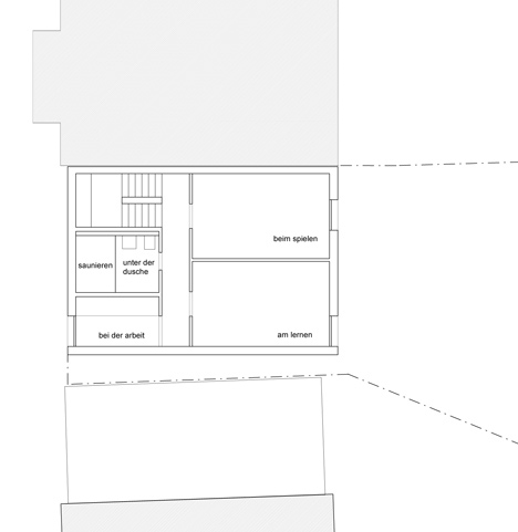
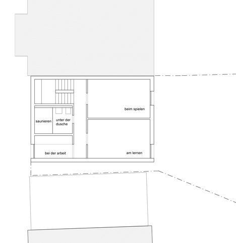
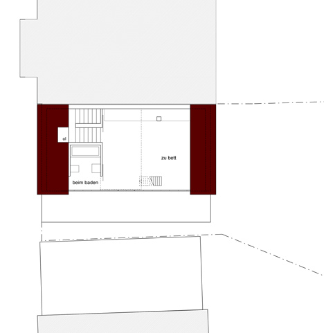
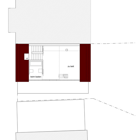
Parterul e ocupat in intregime de zona de zi (living+bucatarie cu loc de luat masa) iar zona de noapte se desfasoara in etajul 1 si mansarda.
Arhitect: Finckh Architekten
Locatie: Stuttgart, Germania
Anul proiectarii-finalizarii : 2008
Fotograf : Zooey Braun
- Sursa: www.dezeen.com
- arhipura | pur si simplu arhitectură …





















Un gând despre &8222;Casa Ostfildern pe teren ingust | Stuttgart&8221;