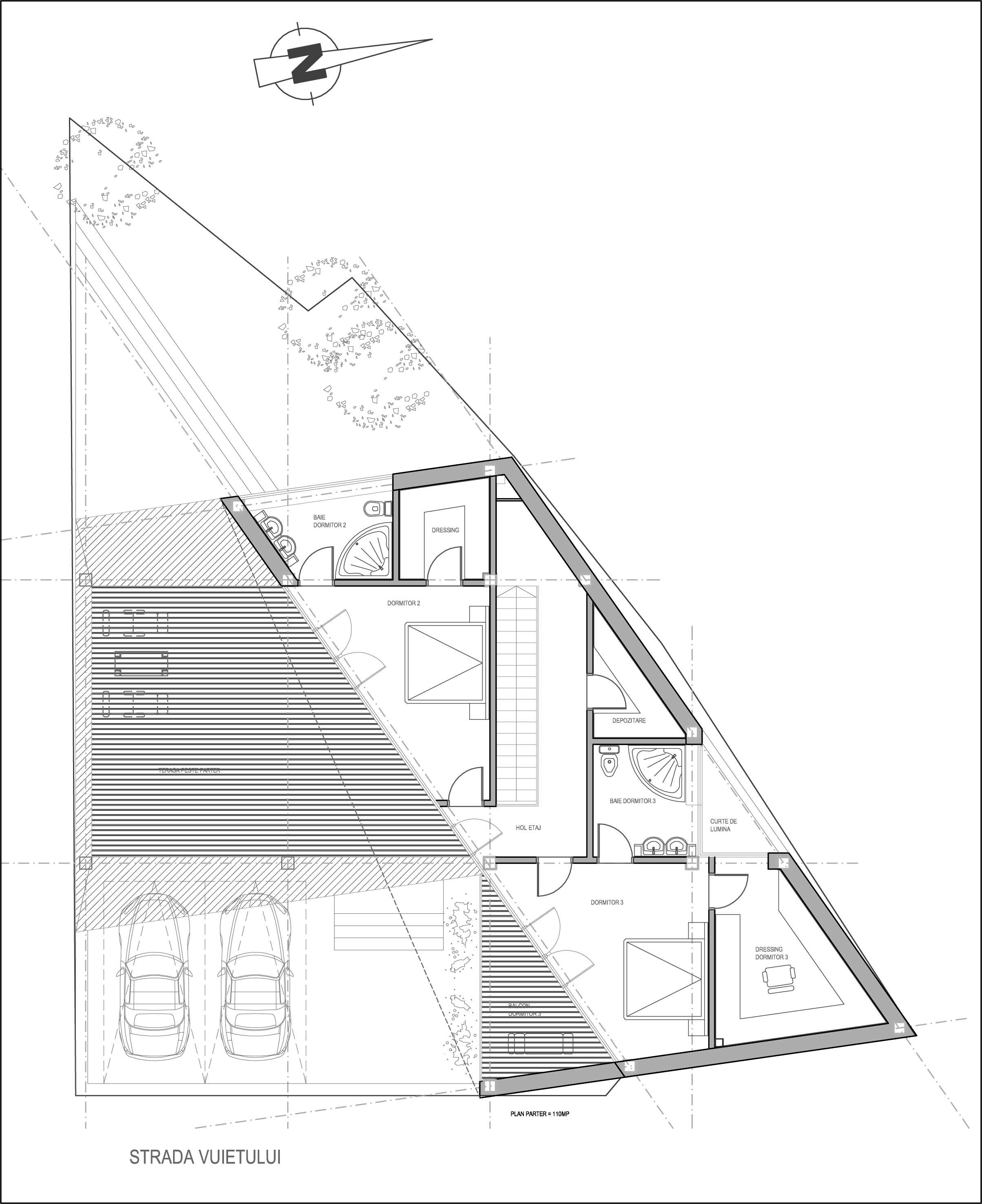
Situata pe un teren cu forma triunghiulara, intr-un tesut urban existent construit, locuinta propusa a trebuit sa se deschida doar catre zona de strada pentru acces si luminarea spatilor. In imediata vecinatate, partial spre strada, locuinta trebuie sa se alipeasca la un calcan existent, si de asemenea pe intreaga latura dinspre dreapta.
La nivelul parterului a fost de asemenea necesar sa poata fi alipita pe limita de proprietate astfel incat se deschide doar catre zona de sud-est.
Desi terenul este unul cu foarte multe restrictii, arhitectul a reusit sa rezolve prin solutia de arhitectura toate aceste limitari, si a oferit beneficiarului o locuinta moderna ce ii satisface toate nevoile.
Arhitect: Gabriel Raicu | CUB Architecture
Locatie: Sector 4, Bucuresti, RO
Anul proiectarii : 2013
Suprafata desfasurata : 275 mp
Fotograf/ Randari : Gabriel Raicu
- Sursa: www.cubarhitect.ro
- arhipura | pur si simplu arhitectură …

















Un gând despre &8222;Locuinta pe teren triunghiular | proiect casa moderna 29&8221;