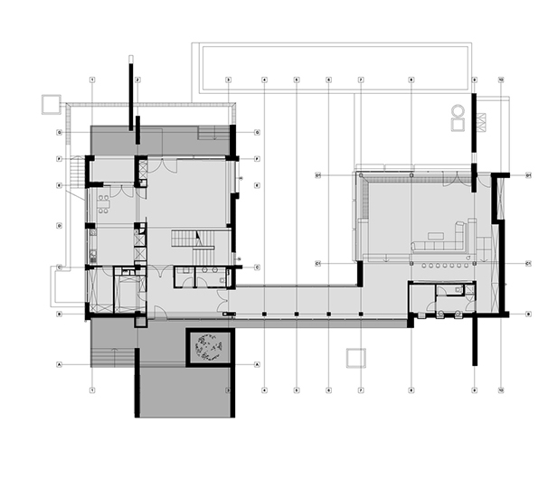
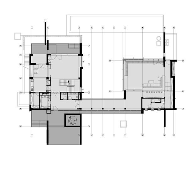
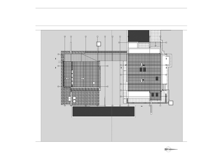
Situată în zona de nord a Bucureștiului, într-un cartier rezidenţial retras, casa Astratinei este un exemplu clar de arhitectură modernă avangardistă. Pentru a valorifică structura terenului, beneficiind totodată de o mare suprafaţă de spațiu verde, locuinţă a fost concepută volumetric ca o alăturare, simplă şi concisă, de corpuri geometrice, desfăşurate pe direcţie orizontală.
Astfel, casa este formată din două corpuri a căror legătură se realizează printr-o “pasarelă” vitrată. Corpul principal este locuinţa propriu-zisă, care cuprinde zona de zi, dining, bucătăria şi alte spaţii anexe la parter, iar la etaj dormitoarele, şi cel secundar, pentru entertainment, compus dintr-un living foarte spaţios şi alte spaţii destinate relaxării (saună, spa, piscină).
Toate spaţiile comunică în mod direct cu exteriorul, raportul plin-gol fiind aproximativ egal, pentru a accentua continuitatea spaţiilor şi relaţia cu gradina, nivelul parterului se afla în ambele corpuri la aceaiși cotă cu gazonul, doar “pasarela” de sticlă este ridicată de la sol, astfel încât cele două sectoare ale grădinii şi implicit zona de verdeaţă sunt comunicante.
S-a optat pentru o îmbinare de mobilier Art Deco şi ansambluri moderne, precum şi o serie de obiecte de design, avangardiste, folosite cu rol de elemente accent. Trăsătura definitorie a acestui spaţiu o reprezintă capacitatea de a oferi un scenariu de locuire confortabil, motivant şi versatil, care se adaptează cu uşurinţă diferitelor stiluri de viaţă.
Arhitect: PROGRAPHIC ARCHITECTURE STUDIO
Locatie: Bucuresti
Anul proiectarii : 2005
Suprafata desfasurata : 807 mp
Fotograf/ Randari : Cosmin DRAGOMIR
- Sursa: www.arhiforum.ro
- arhipura | pur si simplu arhitectură …






















Exceptionala casa. M-a lasat fara cuvinte. Pretul banuiesc ca este pe masura frumusetii.