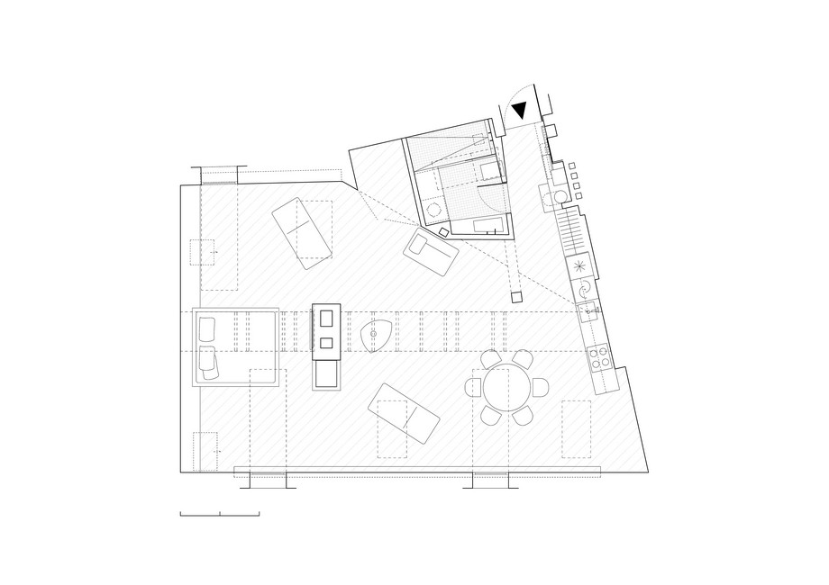
Acesta mansarda a fost proiectata de echipa YCL in capitala Lituaniei, Vilnius si prezinta o amenajare dominata de alb, peretii inclinati ai acoperisului contrastand cu podelele din lemn inchis la culoare. Mansarda cu o suprafata de 64 mp are o dispunere suprinzator de deschisa tip studio, cu doar un perete multifunctional ce separa dormitorul de living.
In ciuda spatiului mic si inclinat, pare foarte spatioasa din cauza geometriei vizuale. Fiecare coltisor este diferit indiferent din ce punct privesti si exact aceasta asimetrie face interiorul sa fie incantator. Un coridor lung invita musafirii inauntru de unde pot vedea vechiul oras. Spatiul deschis fara partitii, usi sau alte stereotipuri, face ca viata aici sa fie incantatoare si neobisnuita.













6 gânduri despre &8222;Amenajarea moderna a unei mansarde in Vilnius, Lituania&8221;