Gandita pentru o persoana tanara, cu previziuni de viitor asa incat sa poata acoperi necesarul de functionare si de confort al unei noi familii, locuinta aceasta incearca sa imbine partea estetica si partea economica, asa incat sa se obtina cit mai mult o investitie minimala, in conditii de calitate ridicata.
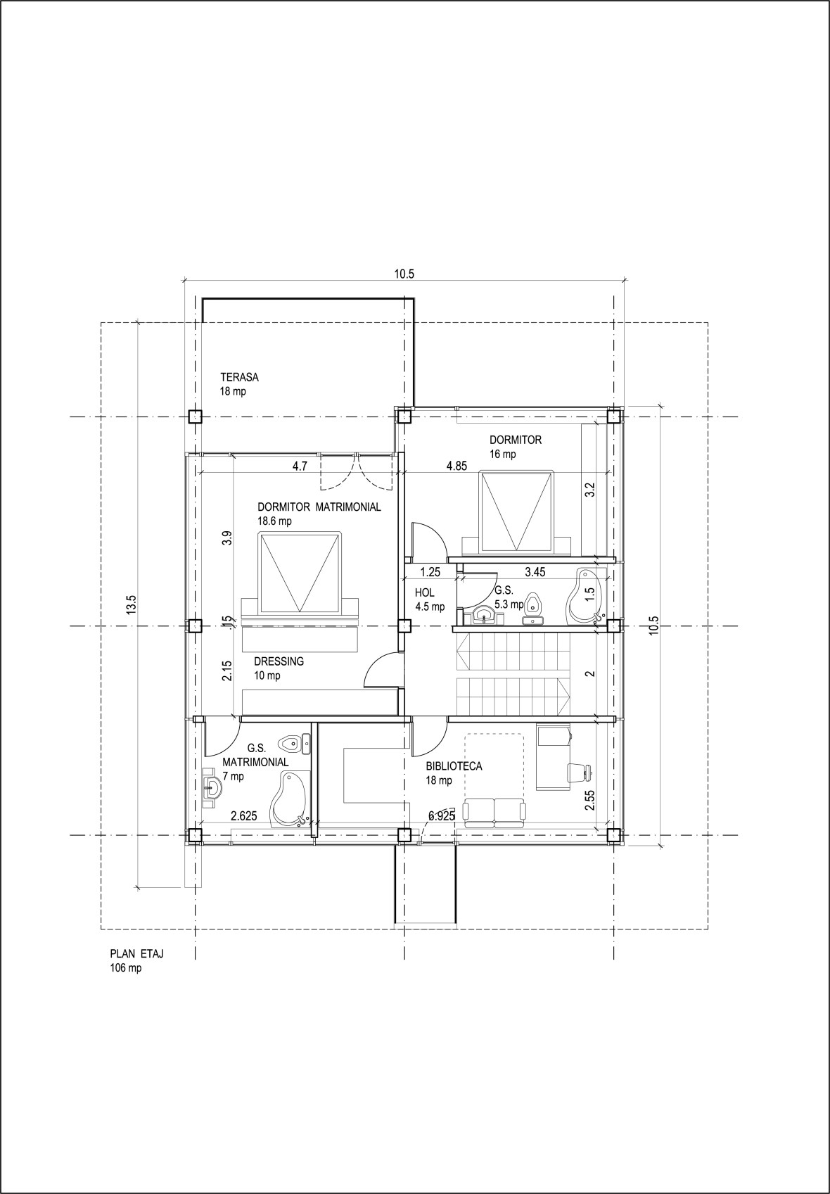
Astfel, zona de zi din parter este tratata ca sistem open-space, integrand livingul, diningul, circulatiile si la nevoie chiar bucataria, cu deschideri vitrate pe ambele laturi – inspre strada si inspre curte, in directa legatura cu o terasa partial acoperita de balconul de la etaj, al dormitorului matrimonial.
Casa moderna este asezata pe un teren generos de cca. 1000mp, astfel incat inclusiv partea de amenajare peisagistica va trebui sa tina cont de estetica in care se va incadra intreg sistemul casa – teren – curte – gard.
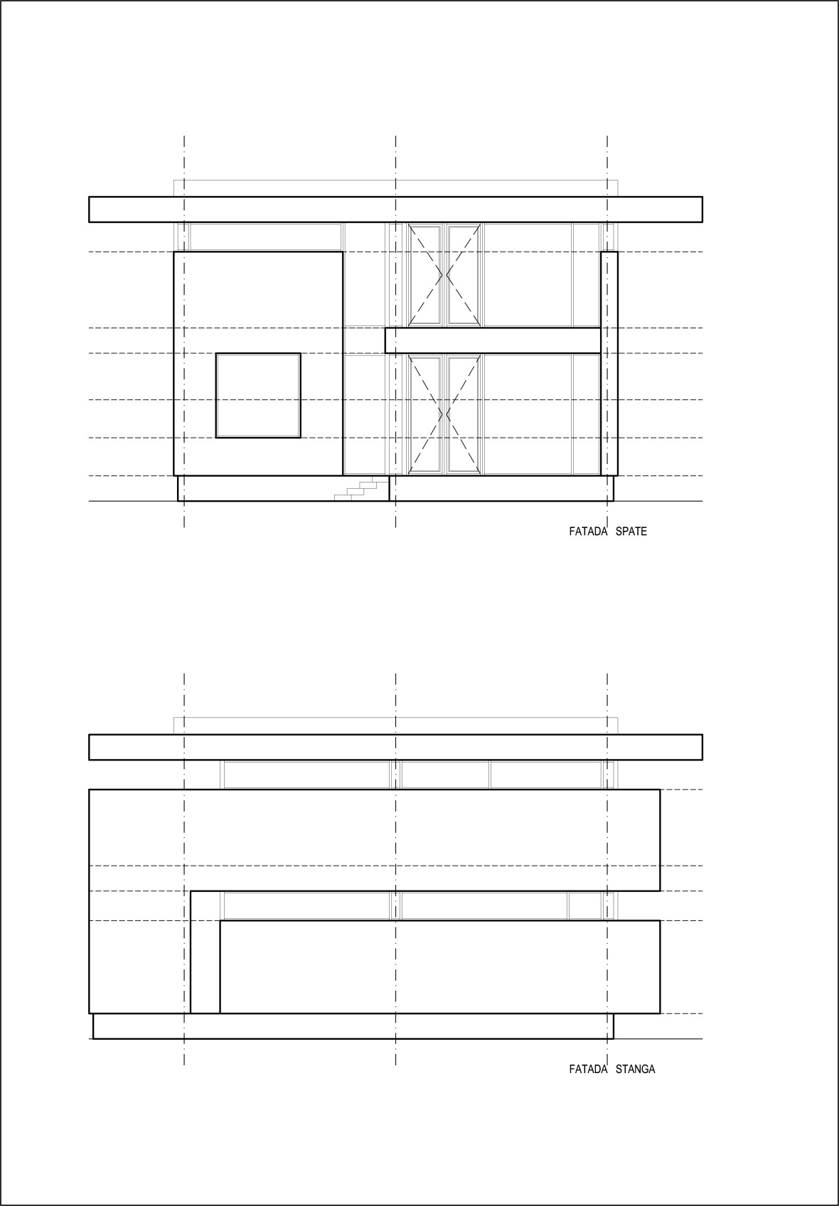
In cromatica fatadei de acces dinspre strada s-a optat pentru un accent de culoare, concretizat in placarea cu sticla colorata a parapetului de la balconul biroului/bibliotecii de la etaj. In acelasi timp, acest balcon minimal se constituie si intr-o copertina peste zona de acces in casa.
Arhitect: Gabriel Raicu | CUB Architecture
Locatie: Pipera, Voluntari
Anul proiectarii : 2012
Suprafata desfasurata : 270 mp
Fotograf/ Randari : Gabriel Raicu
- Sursa: www.cubarhitect.ro
- arhipura | pur si simplu arhitectură …

















Am observat ca acoperisurile astea sunt la moda.