Casa Troja a fost conceputa pentru o familie tanara ce isi dorea o locuinta in natura, unde sa se poata retrage in fiecare weekend, departe de agitatia orasului Praga.
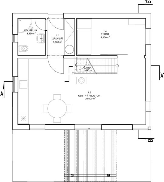
Chiar daca este destul de mica (aprox. 6x7m) locuinta ofera spatiul necesar locuirii in bune conditi.
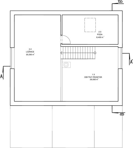
La parter se afla zona de zi : bucatarie mica cu loc de luat masa, camera de zi, baie si o camera pentru oaspeti, iar la etaj doua dormitoare. Spatiu suficient pentru scopul realizarii ei. Camera de oaspetii se desparte de living printr-un perete mobil, astfel permite acestuia sa isi mareasca suprafata interioara. Livingul este extins si spre exterior cu ajutorul unei terase.
Imaginea exterioara a casei contrasteaza cu interiorul puternic luminat.Ca si finisaje exterioare s-au ales pentru fatade o nuanta de gri in combinatie cu sipci din lemn natur.Locuinta beneficiaza si de o gradina bogata in vegetatie.
Arhitect: Prodesi – Pavel Horak
Locatie: Praga, Cehia
Suprafata proiect: 90 mp
Finalizare: 2007-2008
Fotograf: Lina Németh
- Sursa: www.domesi.cz
- arhipura | pur si simplu arhitectură …













5 gânduri despre &8222;Casa mica de vacanta | Cehia&8221;