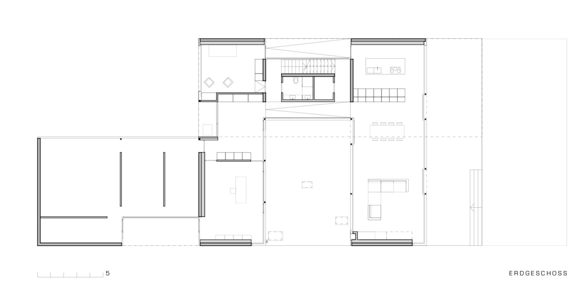
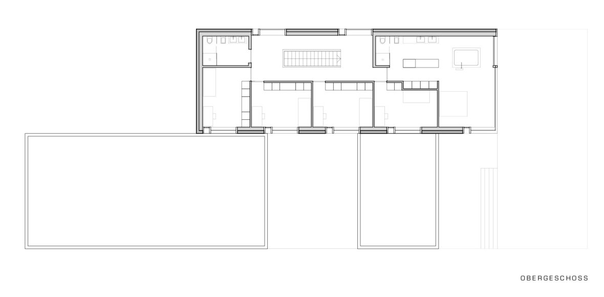
Localizarea si organizarea volumetrica a vilei interpreteaza si foloseste la maxim calitatile specifice ale terenului . Topografia terenului, usor inclinat pana la lac, vederea incomparabila si pozitia insorita genereaza o cladire structurata pe doua niveluri, care imparte parcela liniar in diferite zone.
Curtea, terasa curtii si forma zonei de tarm spre lac, formeaza o secventa de locuri specifice care directioneaza beneficiarii dinspre drum treptat catre lac. Verticala uluitoare si extinderea cladirii raspunde intr-un mod subtil diferitelor nevoi ale cartierului si ofera vederi interioare si exterioare spre peisajul inconjurator.
Arhitect: Niklaus Graber + Christoph Steiger Architekten
Locatie: Lake Lucerne, Elvetia
Anul proiectarii/executiei : 2007
Suprafata desfasurata : 285 mp
Fotograf : Dominique M.Wehrli
- Sursa: www.archdaily.com
- arhipura | pur si simplu arhitectură …



















Great architecture of simple lines!!! awesome views!!