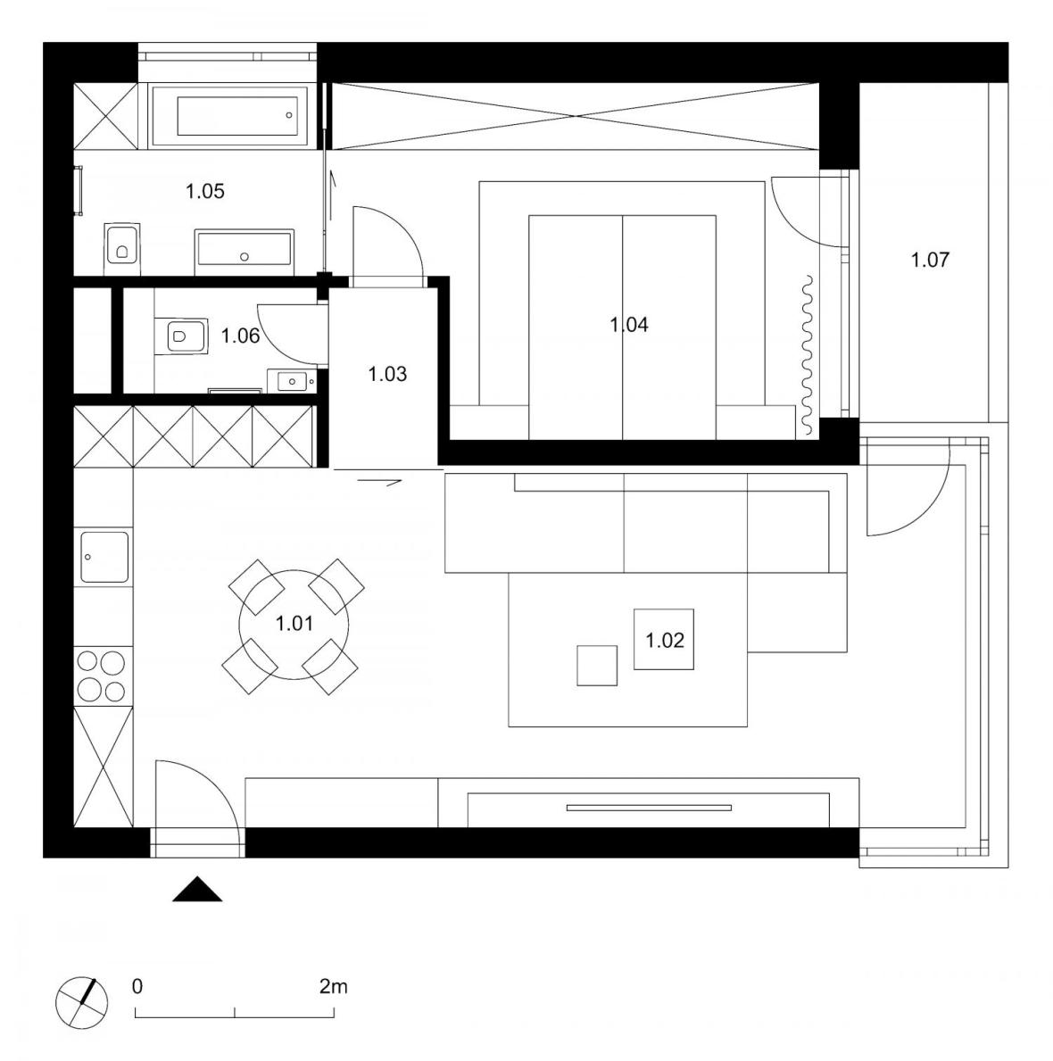
Acest apartament modern a fost amenajat de studioul RULES si este situat intr-un imobil nou construit, in cel mai mare oras din Slovacia, Bratislava. Este un apartament elegant cu doua camere si prezinta un design interior spectaculos plin de viata, culoare, punand mult accent pe legaturile functionale dintre spatii . Mobilierul personalizat atipic realizat din materiale cu texturi naturale este pus in valoare datorita luminii, a peretilor placati cu oglinzi dar si a peretelui de un albastru violent, folosit ca un accent pe langa albul dominant.

















3 gânduri despre &8222;Amenajarea interioara a unui apartament cu 2 camere&8221;